Ce chantier d’extension rénovation de maison individuelle a été réalisé par l’équipe Maisons de l’Avenir Extension-Rénovation de Loire-Atlantique. La demande du propriétaire portait sur un agrandissement de la maison sur le côté.
Une solution d’agrandissement de maison clé en main
Pour réaliser ce chantier d’extension rénovation de maison avec étage, de nombreux corps de métiers du bâtiment sont intervenus : maçon, charpentier, peintre, plombier, chauffagiste, électricien, plâtrier, carreleur. En choisissant l’offre Extension – rénovation de Maisons de l’avenir, nous vous assurons une prise en charge de l’ensemble de votre projet de A à Z : conception, chiffrage, dépôt du permis de construire, sélection des entreprises, maîtrise d’œuvre, réalisation des travaux, suivi du chantier et réception des travaux. Nous vous établissons un devis gratuit et vous fournissons plans et vues en perspective, avant la signature d’un contrat de marché de travaux privés. En tant que contractant général, Maisons le l’avenir vous garantit une offre « clé en main ». Le prix fixé sur le contrat, avant la réalisation des travaux, est un prix ferme et définitif et la réception des travaux se fera dans les délais prévus initialement. La réalisation d’un chantier d’agrandissement par Maisons de l’Avenir vous permet également de bénéficier des garanties suivantes : Garantie de parfait achèvement, Garantie biennale et Garantie Décennale. Détail des travaux du chantier d’agrandissement de maison à La Chapelle sur Erdre
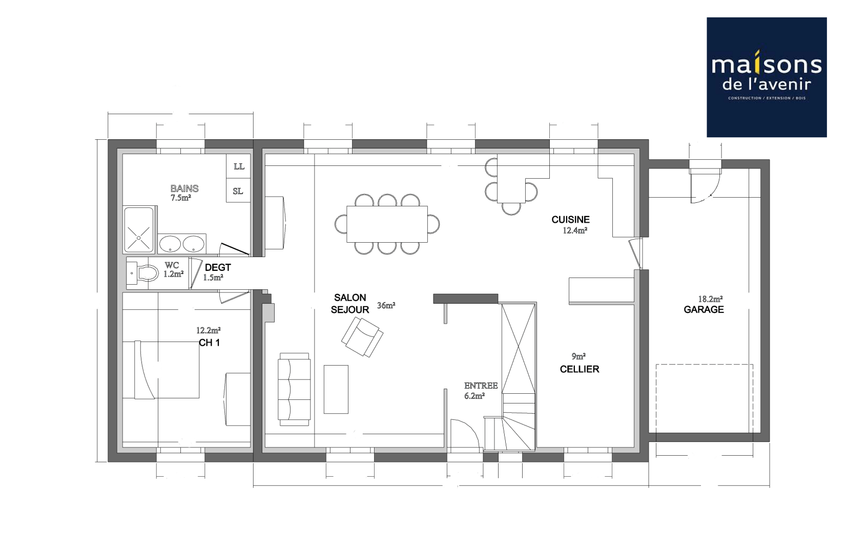
Ce projet d’extension d’une maison avec étage prévoyait un agrandissement sur le côté, afin de créer deux chambres, deux salles de bain et deux WC, sur deux niveaux. Ce chantier a été entièrement réalisé par l’équipe Maisons de l’avenir Extension-Rénovation de Loire-Atlantique. Il a mobilisé l’ensemble des corps de métiers intervenant sur nos chantiers d’extension pour réaliser : travaux de terrassement, travaux de gros-œuvre, travaux de menuiserie intérieure et extérieure, charpente et couverture, ravalement extérieur, plomberie, électricité et chauffage…
Les travaux de terrassement
Les travaux de terrassement ont été réalisés au niveau du pignon de la maison, à l’emplacement de l’agrandissement. Nous avons procédé au décapage de la terre végétale sur 20cm de profondeur. Terrassement réalisé en pleine masse sur 40cm de profondeur.Les travaux de gros-œuvre
Les travaux de gros-œuvre ont débuté par la mise en œuvre de fondations en béton armé, avec soubassement en parpaings creux étanchés. Réalisation des murs d’élévation en parpaings creux, avec mise en œuvre d’appuis de fenêtres et seuils béton. Nous avons également réalisé le percement de la maçonnerie pour créer le passage entre l’existant et l’extension au niveau du rez-de-chaussée, pour le passage vers le salon séjour et la création d’un passage à l’étage au niveau du dégagement. Percements de la maçonnerie avec reprise des éléments techniques (raidisseurs et linteaux).les travaux de charpente et couverture
La charpente traditionnelle de l’extension est réalisée en bois de sapin du nord, avec habillage des bandeaux de toitures en débord de la maçonnerie en lambris PVC. Fourniture et pose de fenêtres de toit avec volet roulant extérieur. La couverture de la toiture et l’habillage de la lucarne de toit ont été réalisés en ardoises synthétiques sur liteaux. Pour ce chantier nous avons posé deux fenêtres de toit Velux sur l’extension et procéder au remplacement de quatre fenêtres Velux sur la partie existante.Ravalement de façade
Mise en œuvre de joints de dilatation entre l’extension et la maison existante. Réalisation d’un enduit monocouche finition grattée (conforme CTSB - Centre scientifique et technique du bâtiment).Travaux de menuiseries extérieures
Le propriétaire de cette maison a profité du chantier d’agrandissement pour rénover les anciennes menuiseries extérieures de l’existant. Nous avons déposé toutes les menuiseries (porte d’entrée et fenêtres) à l’exception de la porte de garage et de la porte de service du garage. Détail de la pose :- 2 fenêtres en 120/135 dans la cuisine et le cellier RDC
- 2 fenêtres en 120/135 dans la salle de bain et la CH1 au RDC
- 3 portes fenêtres 120/215 dans le salon séjour du RDC
- 1 fenêtre 60/95 dans l’entrée en pose en neuf
- 2 fenêtres 100/115 avec volet roulant intégré électrique dans la CH5 à l’étage
- Une porte d’entrée gamme Maisons de l’avenir Essentiel en pose en neuf
Travaux de menuiserie intérieure
Mise en œuvre de 6 portes à recouvrement iso plane rainurées, avec huisseries en sapin.Travaux électriques
Mise en sécurité de l’installation avant démontage. Remise aux normes de l’installation existante suivant norme NFC 15100. Fourniture et pose d’un tableau électrique et protections différentielles adaptées à la configuration du projet. Fourniture et pose d’une ventilation mécanique contrôlée - VMC hygroréglableTravaux de plomberie
Ce chantier d’agrandissement prévoyait le remplacement de l’ancien système de production d’eau chaude, avec la pose d’un nouveau ballon d’eau chaude 300L. Pour les deux nouvelles salles de bain, création des alimentations EC/EF avec évacuation des eaux usées sur les réseaux existants. Fourniture et pose d’un bac à douche 80/120 avec mitigeur thermostatique. Fourniture et pose de deux WC dans la partie extension, avec création d’alimentation EF avec évacuation EU sur le réseau existant.
Pose de carrelage et de faïence
Pose de carreaux en grès émaillé 60x60 (gamme Maisons de l’avenir) dans le séjour, le cellier et l’entrée de la partie existante. Pose à colle et joints en finition au joint gris sur le carrelage existant. Pose de carreaux en grès émaillé 40x40 (gamme Maisons de l’avenir) dans les deux salles de bain et les deux WC de l’extension. Pose de 15m² de faïence dans les deux salles de bain de l’extension.Plaquisterie et isolation
Pour la rénovation complète du rez-de-chaussée et de l’étage existant, nous avons modifié la distribution des pièces, avec modification des cloisons, reprise de l’électricité et du chauffage. La modification de la disposition au niveau de la cuisine a nécessité la condamnation et le rebouchage de la porte existante entre l’entrée et le cellier et la création d’une ouverture entre la cuisine et le cellier. Détail des travaux de plaquisterie dans l’extension :- Plafonds droits : fourniture et pose panneaux en plaque de plâtre type BA13 sur ossature métallique, plus isolation en laine souple de 300mm (R=7.5m².H/W)
- Plafonds rampants : fourniture et pose panneaux en plaque de plâtre type BA13 sur ossature métallique fixée sur la charpente, plus isolation en laine semi rigide de 220mm (R= 6.25.K/W)
