Paimpol 22500
Prix Maison + Terrain
314 000 €
Référence
SR2381476_2
Maison sur-mesure
1045 m2
86 m2
3 chambres
4 pièces
1 salles de bain
Performances énergétiques
Terrain à bâtir Paimpol
Maison F4 (86 m²) en vente à Paimpol
MAISON 4 PIÈCES NEUVE
À vendre : à 5 km de la Manche, à Paimpol (22500), notre agence Maisons de l'Avenir Saint-Brieuc est heureuse de vous proposer cette maison de 4 pièces de 86 m² et de 1 045 m² de terrain.
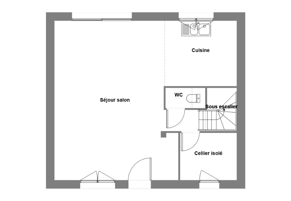
Cette maison comporte 2 niveaux. Son intérieur inclut trois chambres, une cuisine et une salle de bains. Cette maison est neuve.
Des établissements scolaires de tous niveaux (de la maternelle au lycée) sont implantés à moins de 10 minutes à pied. Niveau transports en commun, on trouve la gare Paimpol à proximité. Il y a un tennis, un bassin de natation, un port de plaisance, des commerces, des boulangeries, deux supermarchés, trois poissonneries et une supérette à quelques minutes à peine. Le marché Centre-Ville a lieu tous les mardis matin.
Son prix de vente est de 314 000 €.
Prenez contact avec Samuel ROGER (02-96-78-52-58) pour obtenir de plus amples renseignements sur la maison ou sur les modalités de vente.
Je contacte l' agence de Saint-Brieuc
Maisons de l’Avenir, constructeur de maisons individuelles, propose en collaboration avec ses partenaires fonciers, une sélection de terrains constructibles, selon disponibilité, pour la construction de maisons neuves définies par le constructeur, avec un contrat de construction de maison individuelle, dans le cadre de la loi du 19/12/1990. Prix net, hors frais notariés, d'enregistrement et de publicité foncière
Terrain proposé au prix de : 142 500 €
Maison proposée au prix de : 171 500 €
Etiquette énergie : A. Assurances et garanties du constructeur (RC professionnelle, décennale, dommage ouvrage, Garantie de livraison à prix et délai convenu).
