Bubry 56310
Prix Maison + Terrain
235 600 €
Référence
RLBC2409056_3
Maison sur-mesure
363 m2
92 m2
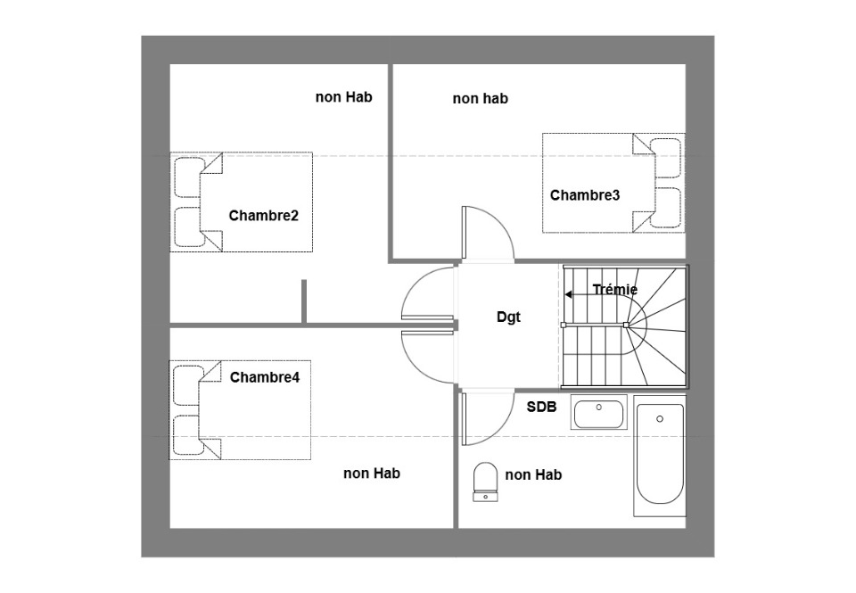
4 chambres
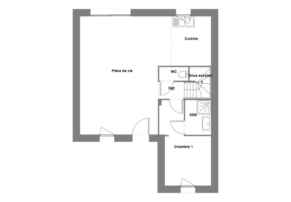
5 pièces
2 salles de bain
Performances énergétiques
Terrain à bâtir Bubry
VENTE d'une maison T5 (92 m²) à Bubry
IDÉALEMENT SITUÉE - MAISON 5 PIÈCES NEUVE
À 35 km de la côte atlantique et à 29 km de Lorient, laissez vous charmer par à vendre, idéalement située dans Bubry (56310), cette maison de 5 pièces de 92 m².
Cette maison compte 2 niveaux. Son intérieur dispose de quatre chambres, d'une cuisine et de deux salles de bains. La maison est neuve.
Le terrain du bien s'étend sur 363 m².
Cette maison est située dans un secteur attractif. On trouve l'École Primaire Publique la Feuillaison et l'École Primaire Privée Sainte Hélène à moins de 10 minutes à pied. La nationale N24 est accessible à 14 km. Il y a une bibliothèque, un tennis, quatre commerces, trois boulangeries, un supermarché, une épicerie et un bureau de poste dans les environs.
Son prix de vente est de 235 550 €.
Contactez notre agence (Riwal LE BARON COURTET : 02-97-21-63-96) pour toute information sur la maison ou sur les modalités de vente. Faites de vos projets immobiliers une réalité avec Maisons de l'Avenir Lorient.
Je contacte l' agence de Lorient
Maisons de l’Avenir, constructeur de maisons individuelles, propose en collaboration avec ses partenaires fonciers, une sélection de terrains constructibles, selon disponibilité, pour la construction de maisons neuves définies par le constructeur, avec un contrat de construction de maison individuelle, dans le cadre de la loi du 19/12/1990. Prix net, hors frais notariés, d'enregistrement et de publicité foncière
Terrain proposé au prix de : 18 150 €
Maison proposée au prix de : 217 400 €
Etiquette énergie : A. Assurances et garanties du constructeur (RC professionnelle, décennale, dommage ouvrage, Garantie de livraison à prix et délai convenu).
