Moëlan-sur-Mer 29350
Prix Maison + Terrain
346 000 €
Référence
RLBC2399086_3
Maison sur-mesure
355 m2
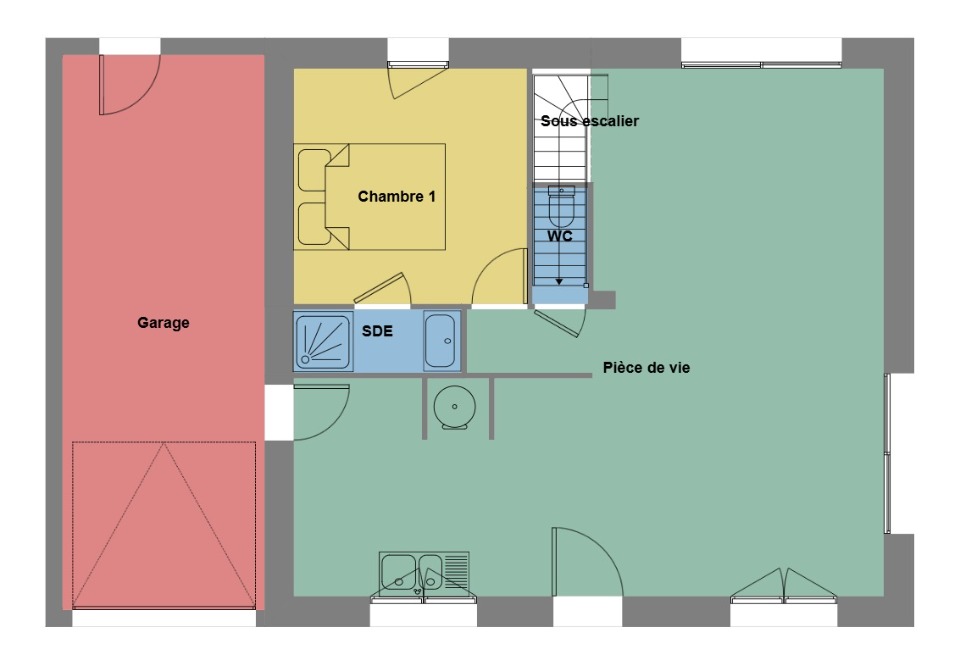
119 m2
5 chambres
6 pièces
2 salles de bain
Garage
Performances énergétiques
Terrain à bâtir Moëlan-sur-Mer
Moëlan-sur-Mer : maison de 6 pièces (119 m²) à vendre
IDÉALEMENT SITUÉE - MAISON 6 PIÈCES NEUVE
En vente sur la côte atlantique et à quelques kilomètres de Lorient, nous vous proposons cette maison de 6 pièces de 119 m² et de 355 m² de terrain idéalement située dans Moëlan-sur-Mer (29350).
Cette maison compte 2 niveaux. Elle se divise en cinq chambres, une cuisine et deux salles de bains. La maison est neuve.
La maison se trouve dans un secteur recherché. Il y a l'École Primaire Privée Immaculée-Conception, l'École Élémentaire Publique de Moëlan-Sur-Sur et le Collège Parc-Ar-Ar-Ar Cotty à proximité et deux structures d'accueil pour la petite enfance. Niveau transports, on trouve la gare Quimperlé à moins de 10 minutes en voiture. La nationale N165 est accessible à 7 km. Il y a un tennis, des commerces, trois boulangeries, un supermarché et un bureau de poste à quelques minutes à peine. Enfin, le marché Place de l'Eglise anime le quartier tous les mardis matin.
Elle est à vendre pour la somme de 346 000 €.
N'hésitez pas à prendre contact avec notre agence (Riwal LE BARON COURTET : 02-97-21-63-96) pour plus de renseignements sur la maison ou sur les démarches à suivre.
Je contacte l' agence de Lorient
Maisons de l’Avenir, constructeur de maisons individuelles, propose en collaboration avec ses partenaires fonciers, une sélection de terrains constructibles, selon disponibilité, pour la construction de maisons neuves définies par le constructeur, avec un contrat de construction de maison individuelle, dans le cadre de la loi du 19/12/1990. Prix net, hors frais notariés, d'enregistrement et de publicité foncière
Terrain proposé au prix de : 64 000 €
Maison proposée au prix de : 282 000 €
Etiquette énergie : A. Assurances et garanties du constructeur (RC professionnelle, décennale, dommage ouvrage, Garantie de livraison à prix et délai convenu).
