Melgven 29140
Prix Maison + Terrain
265 000 €
Référence
MD2413101_1
Maison sur-mesure
570 m2
75 m2
3 chambres
4 pièces
1 salles de bain
Garage
Performances énergétiques
Terrain à bâtir Melgven
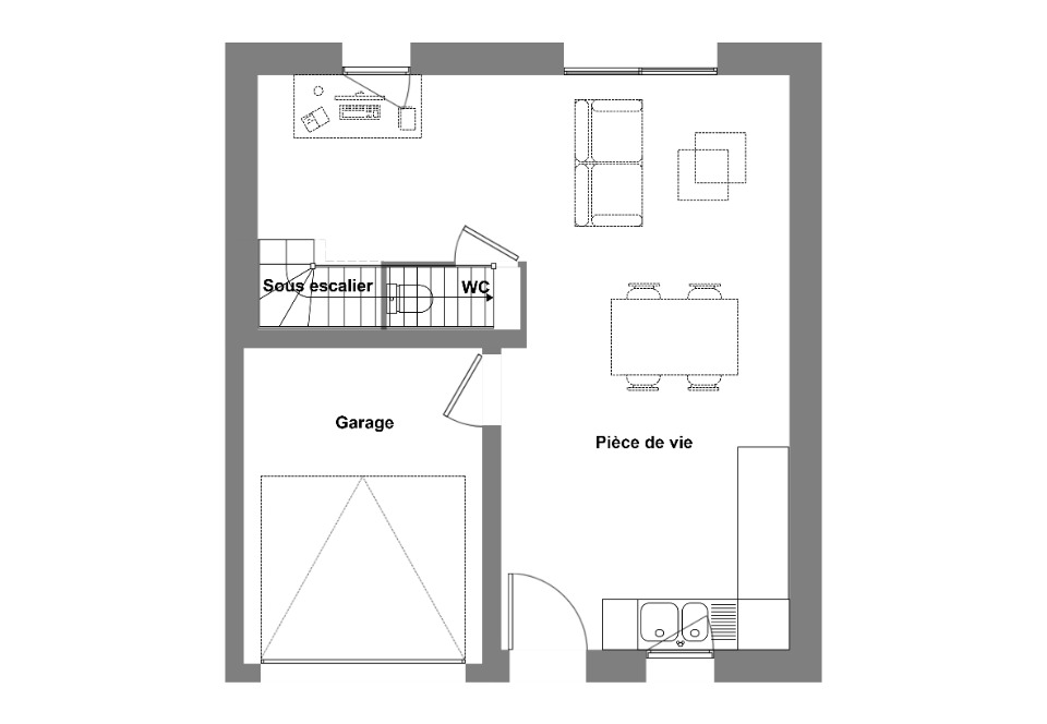
Melgven : maison F4 (75 m²) à vendre
MAISON 4 PIÈCES NEUVE - PROCHE DE QUIMPER
À vendre à 10 km de la côte atlantique et à deux pas de Quimper, votre agence Maisons de l'Avenir Quimper est ravie de vous proposer cette maison de 4 pièces de 75 m² à Melgven (29140). Son intérieur compte trois chambres, une cuisine et une salle de bains.
Le terrain de la propriété est de 570 m².
Il s'agit d'une maison de 2 niveaux.
Elle est proposée à l'achat pour 265 000 €.
N'hésitez pas à prendre contact avec notre constructeur (Mathieu DEROUET : 02-98-54-75-20) pour toute question sur cette maison.
Je contacte l' agence de Quimper
Maisons de l’Avenir, constructeur de maisons individuelles, propose en collaboration avec ses partenaires fonciers, une sélection de terrains constructibles, selon disponibilité, pour la construction de maisons neuves définies par le constructeur, avec un contrat de construction de maison individuelle, dans le cadre de la loi du 19/12/1990. Prix net, hors frais notariés, d'enregistrement et de publicité foncière
Terrain proposé au prix de : 75 000 €
Maison proposée au prix de : 190 000 €
Etiquette énergie : A. Assurances et garanties du constructeur (RC professionnelle, décennale, dommage ouvrage, Garantie de livraison à prix et délai convenu).
