Trégunc 29910
Prix Maison + Terrain
505 000 €
Référence
MD2398672_1
Maison sur-mesure
830 m2
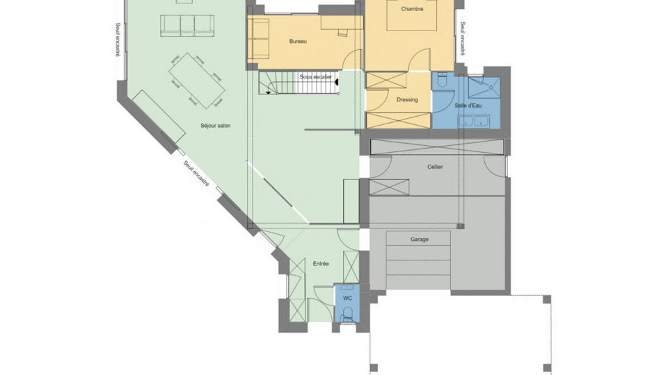
160 m2
4 chambres
5 pièces
2 salles de bain
Garage
Performances énergétiques
Terrain à bâtir Trégunc
VENTE d'une maison de 5 pièces (160 m²) à Trégunc
MAISON 5 PIÈCES NEUVE - PROCHE DE QUIMPER
À vendre : située à 5 km de la côte atlantique et à deux pas de Quimper, ayez le coup de coeur pour cette maison de 5 pièces de 160 m² à Trégunc (29910).
Cette maison possède 2 niveaux. Elle comporte quatre chambres, une cuisine et deux salles de bains.
Son prix de vente est de 505 000 €.
N'hésitez pas à prendre contact avec notre agence (Mathieu DEROUET : 02-98-54-75-20) pour toute question sur la maison ou sur les démarches à suivre.
Je contacte l' agence de Quimper
Maisons de l’Avenir, constructeur de maisons individuelles, propose en collaboration avec ses partenaires fonciers, une sélection de terrains constructibles, selon disponibilité, pour la construction de maisons neuves définies par le constructeur, avec un contrat de construction de maison individuelle, dans le cadre de la loi du 19/12/1990. Prix net, hors frais notariés, d'enregistrement et de publicité foncière
Terrain proposé au prix de : 118 000 €
Maison proposée au prix de : 387 000 €
Etiquette énergie : A. Assurances et garanties du constructeur (RC professionnelle, décennale, dommage ouvrage, Garantie de livraison à prix et délai convenu).
