Ploéven 29550
Prix Maison + Terrain
246 000 €
Référence
MD2394557_2
Maison sur-mesure
515 m2
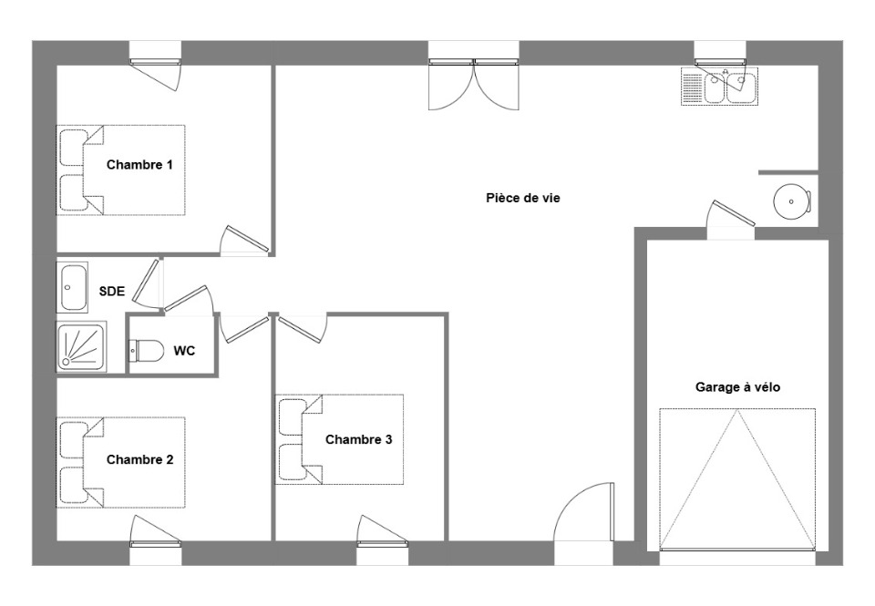
75 m2
3 chambres
4 pièces
1 salles de bain
Maison de plain pied
Garage
Performances énergétiques
Terrain à bâtir Ploéven
VENTE : maison de 4 pièces (75 m²) à Ploéven
CENTRE-VILLE - MAISON 4 PIÈCES NEUVE
À vendre : sur la côte atlantique et à quelques kilomètres de Quimper, nous vous proposons cette maison de 4 pièces de plain-pied de 75 m² et de 515 m² de terrain, au coeur de Ploéven (29550).
Son intérieur est composé de trois chambres, d'une cuisine et d'une salle de bains.
Elle est proposée à l'achat pour 246 000 €.
Prenez contact avec Mathieu DEROUET (tél : 02-98-54-75-20) pour obtenir de plus amples renseignements sur la maison ou sur les démarches à suivre. Maisons de l'Avenir Quimper vous accompagne à toutes les étapes de l'achat et dans tous vos projets immobiliers.
Je contacte l' agence de Quimper
Maisons de l’Avenir, constructeur de maisons individuelles, propose en collaboration avec ses partenaires fonciers, une sélection de terrains constructibles, selon disponibilité, pour la construction de maisons neuves définies par le constructeur, avec un contrat de construction de maison individuelle, dans le cadre de la loi du 19/12/1990. Prix net, hors frais notariés, d'enregistrement et de publicité foncière
Terrain proposé au prix de : 41 000 €
Maison proposée au prix de : 205 000 €
Etiquette énergie : A. Assurances et garanties du constructeur (RC professionnelle, décennale, dommage ouvrage, Garantie de livraison à prix et délai convenu).
