Henvic 29670
Prix Maison + Terrain
301 000 €
Référence
AC2406330_3
Maison sur-mesure
502 m2
117 m2
5 chambres
6 pièces
2 salles de bain
Garage
Performances énergétiques
Terrain à bâtir Henvic
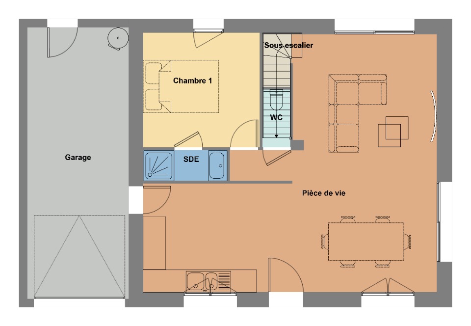
VENTE d'une maison de 6 pièces (117 m²) à Henvic
MAISON 6 PIÈCES NEUVE
À vendre : située sur le littoral, à Henvic (29670), ayez le coup de coeur pour cette maison de 6 pièces de 117 m² et de 502 m² de terrain.
C'est une maison de 2 niveaux. Son intérieur propose cinq chambres, une cuisine et deux salles de bains.
Son prix de vente est de 301 000 €.
Contactez notre agence (Aurélie CAGNARD) pour toute question sur la maison, sur les démarches à suivre ou sur les modalités de vente. Maisons de l'Avenir Guipavas vous accompagne dans tous vos projets immobiliers et dans toutes vos démarches.
Je contacte l' agence de Guipavas
Maisons de l’Avenir, constructeur de maisons individuelles, propose en collaboration avec ses partenaires fonciers, une sélection de terrains constructibles, selon disponibilité, pour la construction de maisons neuves définies par le constructeur, avec un contrat de construction de maison individuelle, dans le cadre de la loi du 19/12/1990. Prix net, hors frais notariés, d'enregistrement et de publicité foncière
Terrain proposé au prix de : 52 000 €
Maison proposée au prix de : 249 000 €
Etiquette énergie : A. Assurances et garanties du constructeur (RC professionnelle, décennale, dommage ouvrage, Garantie de livraison à prix et délai convenu).
