Bodilis 29400
Prix Maison + Terrain
241 900 €
Référence
AC2383471_4
Maison sur-mesure
797 m2
89 m2
4 chambres
5 pièces
2 salles de bain
2 Garages
Performances énergétiques
Terrain à bâtir Bodilis
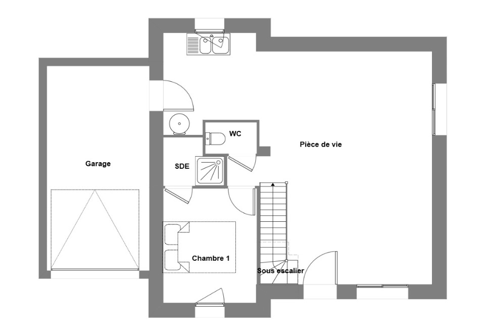
Bodilis : maison de 5 pièces (89 m²) en vente
PROCHE DE BREST - MAISON 5 PIÈCES NEUVE
À vendre sur le littoral et à deux pas de Brest, nous vous présentons cette maison de 5 pièces de 89 m² et de 797 m² de terrain à Bodilis (29400).
Cette maison possède 2 niveaux. Elle se divise en quatre chambres, une cuisine et deux salles de bains. La maison est neuve.
L'École Primaire Privée Notre-Dame est implantée à moins de 10 minutes à pied. Niveau transports en commun, on trouve les gares Landivisiau et La Roche-Maurice à moins de 10 minutes en voiture. On trouve un accès à la nationale N12 à 3 km.
Son prix de vente est de 241 883 €.
Prenez contact avec notre agence (CAGNARD Aurélie) pour plus d'informations sur cette maison. Maisons de l'Avenir Guipavas vous accompagne dans toutes vos démarches et dans tous vos projets immobiliers.
Je contacte l' agence de Guipavas
Maisons de l’Avenir, constructeur de maisons individuelles, propose en collaboration avec ses partenaires fonciers, une sélection de terrains constructibles, selon disponibilité, pour la construction de maisons neuves définies par le constructeur, avec un contrat de construction de maison individuelle, dans le cadre de la loi du 19/12/1990. Prix net, hors frais notariés, d'enregistrement et de publicité foncière
Terrain proposé au prix de : 31 083 €
Maison proposée au prix de : 210 800 €
Etiquette énergie : A. Assurances et garanties du constructeur (RC professionnelle, décennale, dommage ouvrage, Garantie de livraison à prix et délai convenu).
