Prix Maison + Terrain
- À partir de 313 000 €
Référence
- PAB2358009_1
Maison personnalisable
- Chambres : 3
- Nombre de pièces : 4
- Surface maison : 83 m²
- Surface terrain : 460 m²
- Garage/Carport
Performances énergétiques
- Classe énergétique : A
Description
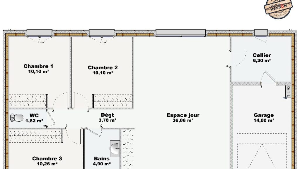
VENTE d'une maison T4 (83 m²) à Vertou
IDÉALEMENT SITUÉE - MAISON 4 PIÈCES NEUVE
En vente à 31 km de la côte atlantique, nous vous proposons, idéalement située dans Vertou (44120), cette maison de 4 pièces de 83 m² et de 460 m² de terrain avec vue sur espace vert.
Cette maison est de plain-pied. Conçue de plain-pied, elle dispose de trois chambres, d'une cuisine et d'une salle de bains. La maison est neuve.
La maison est située dans un secteur attractif. Plusieurs établissements scolaires (maternelle, élémentaire, primaire et collège) y sont implantés. Côté transports en commun, il y a sept gares à moins de 10 minutes en voiture. L'autoroute A83 et les nationales N844 et N249 sont accessibles à moins de 5 km. On trouve une bibliothèque et un tennis dans les environs.
Elle est à vendre pour la somme de 313 000 €.
N'hésitez pas à prendre contact avec notre agence (Pierre Antoine BURILLE : 02-40-26-28-28) pour tout renseignement sur la maison. Maisons de l'Avenir Rezé vous accompagne dans toutes vos démarches et à toutes les étapes de votre projet.
IDÉALEMENT SITUÉE - MAISON 4 PIÈCES NEUVE
En vente à 31 km de la côte atlantique, nous vous proposons, idéalement située dans Vertou (44120), cette maison de 4 pièces de 83 m² et de 460 m² de terrain avec vue sur espace vert.
Cette maison est de plain-pied. Conçue de plain-pied, elle dispose de trois chambres, d'une cuisine et d'une salle de bains. La maison est neuve.
La maison est située dans un secteur attractif. Plusieurs établissements scolaires (maternelle, élémentaire, primaire et collège) y sont implantés. Côté transports en commun, il y a sept gares à moins de… Lire la suite
VENTE d'une maison T4 (83 m²) à Vertou
IDÉALEMENT SITUÉE - MAISON 4 PIÈCES NEUVE
En vente à 31 km de la côte atlantique, nous vous proposons, idéalement située dans Vertou (44120), cette maison de 4 pièces de 83 m² et de 460 m² de terrain avec vue sur espace vert.
Cette maison est de plain-pied. Conçue de plain-pied, elle dispose de trois chambres, d'une cuisine et d'une salle de bains. La maison est neuve.
La maison est située dans un secteur attractif. Plusieurs établissements scolaires (maternelle, élémentaire, primaire et collège) y sont implantés. Côté transports en commun, il y a sept gares à moins de 10 minutes en voiture. L'autoroute A83 et les nationales N844 et N249 sont accessibles à moins de 5 km. On trouve une bibliothèque et un tennis dans les environs.
Elle est à vendre pour la somme de 313 000 €.
N'hésitez pas à prendre contact avec notre agence (Pierre Antoine BURILLE : 02-40-26-28-28) pour tout renseignement sur la maison. Maisons de l'Avenir Rezé vous accompagne dans toutes vos démarches et à toutes les étapes de votre projet.
Terrain proposé par un partenaire foncier selon disponibilités et autorisation de publicité au prix de 127 200 €. Hors droit d'enregistrement et frais de notaire. Terrain + Maison proposés au prix de 185 800 € (Hors branchements et raccordements, papiers peints, peintures, revêtement de sol dans les chambres. Tarif modifiable sans préavis). Etiquette énergie : A. Différents modèles disponibles pour ce terrain. Assurances et garanties du constructeur (RC professionnelle, décennale, dommage ouvrage, garantie de remboursement de l'acompte, livraison à prix et délai convenu) : https://www.maisonsdelavenir.com/mentions-legales/.
Localisation
Une maison 100% personnalisable
-
Garage
-
Agencement
-
Revêtements extérieurs
-
Toiture
-
Ouvertures
Nos garanties constructeur
UNE MAISON 100% PERSONNALISÉE
Définir un style architectural (contemporain, moderne, traditionnel) et un plan adapté à votre mode de vie pour mettre en lumière votre projet de construction, tel est notre quotidien !
SERVICE 3 EN 1
Nos conseillers habitat vous accompagnent tout au long de votre projet : Terrain – Maison - Financement, afin de garantir sa réussite et de satisfaire vos exigences !
DES ANNÉES D'EXPÉRIENCES
Depuis 1962, la marque Maisons de l’Avenir inspire confiance et sérénité, une si longue expérience dans la construction de maisons individuelles, c’est un vrai gage de qualité !





























