Prix Maison + Terrain
- À partir de 434 000 €
Référence
- DM2303697_1
Maison personnalisable
- Chambres : 4
- Nombre de pièces : 5
- Surface maison : 140 m²
- Surface terrain : 400 m²
- Garage/Carport
Performances énergétiques
- Classe énergétique : A
Description
VENTE d'une maison de 5 pièces (140 m²) à Thorigné-Fouillard
IDÉALEMENT SITUÉE - MAISON 5 PIÈCES NEUVE
En vente à quelques kilomètres de Rennes, nous vous présentons cette maison de 5 pièces de 140 m² et de 400 m² de terrain avec vue sur jardin idéalement située dans Thorigné-Fouillard (35235).
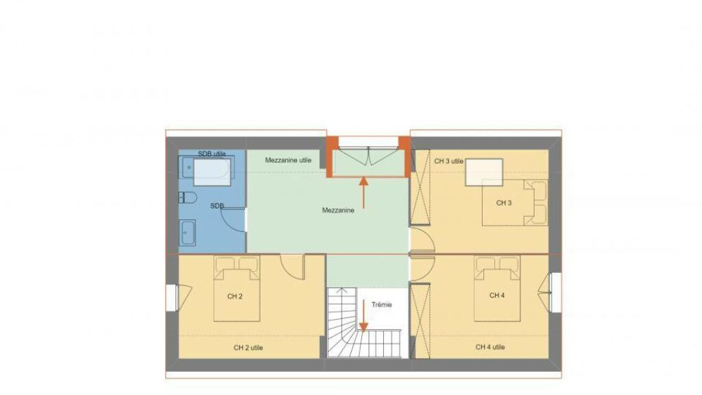
C'est une maison de 2 niveaux. Elle est composée de quatre chambres, d'une cuisine et de deux salles de bains. La maison est neuve.
La maison se situe dans un quartier recherché. L'École Primaire Privée Ste Anne et l'École Maternelle Publique les Prés Verts sont implantées à moins de 10 minutes à pied, tout comme une structure d'accueil pour les tout-petits. Niveau transports, on trouve huit gares à moins de 10 minutes en voiture. L'autoroute A84 et les nationales N136 et N157 sont accessibles à moins de 4 km. Il y a une bibliothèque, des commerces, deux boulangeries, un supermarché, un bureau de poste et deux épiceries à quelques minutes. Enfin, le marché Place du Bocage a lieu tous les dimanches matin.
Son prix de vente est de 434 000 €.
N'hésitez pas à prendre contact avec Dimitri MESAS (02-99-83-07-20) pour toute question sur la maison, sur les modalités de vente ou sur les démarches à suivre.
IDÉALEMENT SITUÉE - MAISON 5 PIÈCES NEUVE
En vente à quelques kilomètres de Rennes, nous vous présentons cette maison de 5 pièces de 140 m² et de 400 m² de terrain avec vue sur jardin idéalement située dans Thorigné-Fouillard (35235).
C'est une maison de 2 niveaux. Elle est composée de quatre chambres, d'une cuisine et de deux salles de bains. La maison est neuve.
La maison se situe dans un quartier recherché. L'École Primaire Privée Ste Anne et l'École Maternelle Publique les Prés Verts sont implantées à moins de 10 minutes à pied, tout comme une… Lire la suite
VENTE d'une maison de 5 pièces (140 m²) à Thorigné-Fouillard
IDÉALEMENT SITUÉE - MAISON 5 PIÈCES NEUVE
En vente à quelques kilomètres de Rennes, nous vous présentons cette maison de 5 pièces de 140 m² et de 400 m² de terrain avec vue sur jardin idéalement située dans Thorigné-Fouillard (35235).
C'est une maison de 2 niveaux. Elle est composée de quatre chambres, d'une cuisine et de deux salles de bains. La maison est neuve.
La maison se situe dans un quartier recherché. L'École Primaire Privée Ste Anne et l'École Maternelle Publique les Prés Verts sont implantées à moins de 10 minutes à pied, tout comme une structure d'accueil pour les tout-petits. Niveau transports, on trouve huit gares à moins de 10 minutes en voiture. L'autoroute A84 et les nationales N136 et N157 sont accessibles à moins de 4 km. Il y a une bibliothèque, des commerces, deux boulangeries, un supermarché, un bureau de poste et deux épiceries à quelques minutes. Enfin, le marché Place du Bocage a lieu tous les dimanches matin.
Son prix de vente est de 434 000 €.
N'hésitez pas à prendre contact avec Dimitri MESAS (02-99-83-07-20) pour toute question sur la maison, sur les modalités de vente ou sur les démarches à suivre.
Maisons de l’Avenir, constructeur de maisons individuelles, propose en collaboration avec ses partenaires fonciers, une sélection de terrains constructibles, selon disponibilité, pour la construction de maisons neuves définies par le constructeur, avec un contrat de construction de maison individuelle, dans le cadre de la loi du 19/12/1990. Prix net, hors frais notariés, d'enregistrement et de publicité foncière
Terrain proposé au prix de : 150 000 €
Maison proposée au prix de : 284 000 €
Etiquette énergie : A. Assurances et garanties du constructeur (RC professionnelle, décennale, dommage ouvrage, Garantie de livraison à prix et délai convenu). https://www.maisonsdelavenir.com/mentions-legales/
Localisation
Une maison 100% personnalisable
-
Garage
-
Agencement
-
Revêtements extérieurs
-
Toiture
-
Ouvertures
Nos garanties constructeur
UNE MAISON 100% PERSONNALISÉE
Définir un style architectural (contemporain, moderne, traditionnel) et un plan adapté à votre mode de vie pour mettre en lumière votre projet de construction, tel est notre quotidien !
SERVICE 3 EN 1
Nos conseillers habitat vous accompagnent tout au long de votre projet : Terrain – Maison - Financement, afin de garantir sa réussite et de satisfaire vos exigences !
DES ANNÉES D'EXPÉRIENCES
Depuis 1962, la marque Maisons de l’Avenir inspire confiance et sérénité, une si longue expérience dans la construction de maisons individuelles, c’est un vrai gage de qualité !















