Prix Maison + Terrain
- À partir de 504 000 €
Référence
- AC2354677_4
Maison personnalisable
- Chambres : 3
- Nombre de pièces : 4
- Surface maison : 120 m²
- Surface terrain : 1793 m²
- Garage/Carport
Performances énergétiques
- Classe énergétique : A
Description
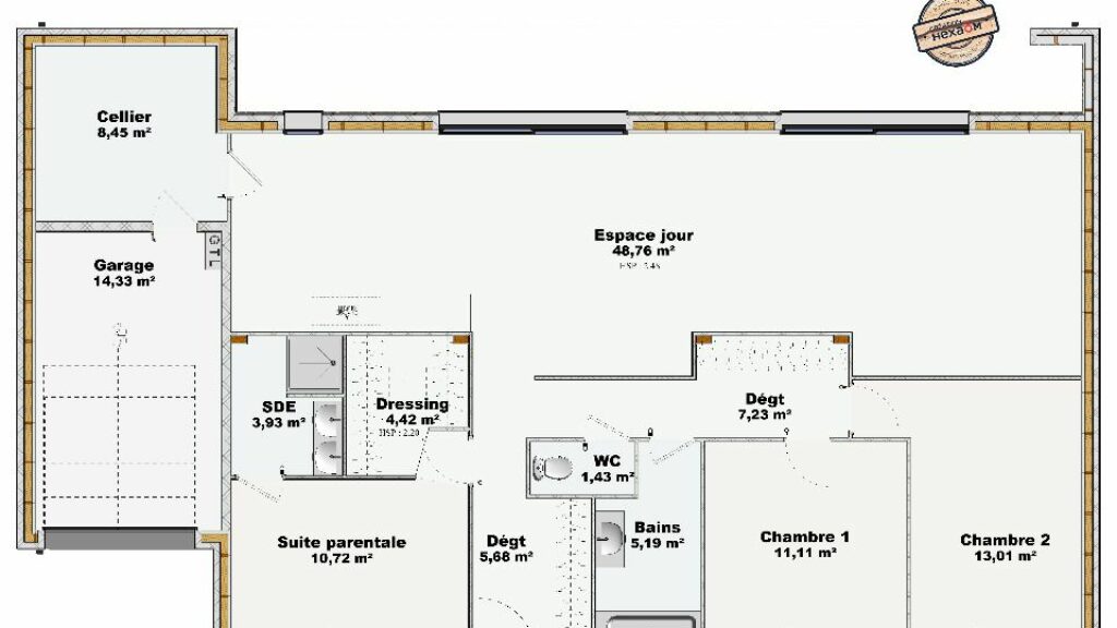
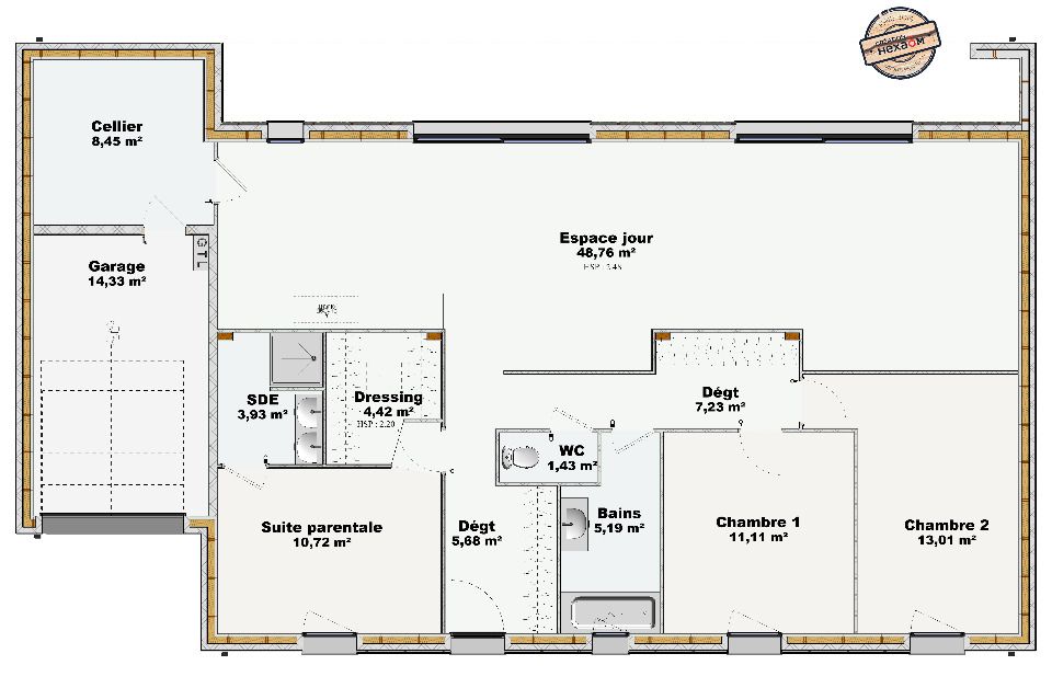
Maison de 4 pièces (120 m²) à vendre à Santec
Très beau plain-pied aux lignes traditionnelles, agencé astucieusement pour un maximum de luminosité, pièce de vie ouverte et volumineuse, 3 chambres dont une suite parentale, un cellier et son garage.
Aux normes RE2020, peu énergivore, elle vous ravira par son confort de vie
Elle est à vendre pour la somme de 504 000 €.
Prenez contact avec notre agence (CAGNARD Aurélie ) pour obtenir de plus amples informations sur la maison.
Très beau plain-pied aux lignes traditionnelles, agencé astucieusement pour un maximum de luminosité, pièce de vie ouverte et volumineuse, 3 chambres dont une suite parentale, un cellier et son garage.
Aux normes RE2020, peu énergivore, elle vous ravira par son confort de vie
Elle est à vendre pour la somme de 504 000 €.
Prenez contact avec notre agence (CAGNARD Aurélie ) pour obtenir de plus amples informations sur la maison. Lire la suite
Maison de 4 pièces (120 m²) à vendre à Santec
Très beau plain-pied aux lignes traditionnelles, agencé astucieusement pour un maximum de luminosité, pièce de vie ouverte et volumineuse, 3 chambres dont une suite parentale, un cellier et son garage.
Aux normes RE2020, peu énergivore, elle vous ravira par son confort de vie
Elle est à vendre pour la somme de 504 000 €.
Prenez contact avec notre agence (CAGNARD Aurélie ) pour obtenir de plus amples informations sur la maison.
Maisons de l’Avenir, constructeur de maisons individuelles, propose en collaboration avec ses partenaires fonciers, une sélection de terrains constructibles, selon disponibilité, pour la construction de maisons neuves définies par le constructeur, avec un contrat de construction de maison individuelle, dans le cadre de la loi du 19/12/1990. Prix net, hors frais notariés, d'enregistrement et de publicité foncière
Terrain proposé au prix de : 249 000 €
Maison proposée au prix de : 255 000 €
Etiquette énergie : A. Assurances et garanties du constructeur (RC professionnelle, décennale, dommage ouvrage, Garantie de livraison à prix et délai convenu). https://www.maisonsdelavenir.com/mentions-legales/
Localisation
Une maison 100% personnalisable
-
Garage
-
Agencement
-
Revêtements extérieurs
-
Toiture
-
Ouvertures
Nos garanties constructeur
UNE MAISON 100% PERSONNALISÉE
Définir un style architectural (contemporain, moderne, traditionnel) et un plan adapté à votre mode de vie pour mettre en lumière votre projet de construction, tel est notre quotidien !
SERVICE 3 EN 1
Nos conseillers habitat vous accompagnent tout au long de votre projet : Terrain – Maison - Financement, afin de garantir sa réussite et de satisfaire vos exigences !
DES ANNÉES D'EXPÉRIENCES
Depuis 1962, la marque Maisons de l’Avenir inspire confiance et sérénité, une si longue expérience dans la construction de maisons individuelles, c’est un vrai gage de qualité !



































