Prix Maison + Terrain
- À partir de 630 000 €
Référence
- AC2354677_1
Maison personnalisable
- Chambres : 5
- Nombre de pièces : 6
- Surface maison : 183 m²
- Surface terrain : 1793 m²
- Garage/Carport
Performances énergétiques
- Classe énergétique : A
Description
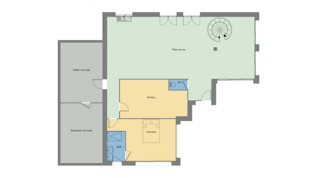
VENTE : maison de 6 pièces (183 m²) à Santec
Cette belle maison traditionnelle aux lignes contemporaines offre 183m² habitable . Au rez-de-chaussée, elle dispose d'une belle pièce de vie offrant un maximum de lumière, d'une grande suite parentale avec sa salle d'eau, d'un wc, d'un cellier et d'une buanderie.
A l'étage on retrouve 3 chambres et une salle de bain.
L'orientation de cette maison vous permettra de bénéficier d'un maximum de lumière et de chaleur naturelle pour davantage d'économies et de douceur de vivre.
Aux normes RE2020, peu énergivore, elle vous ravira par son confort de vie
Elle est à vendre pour la somme de 630 000 €.
Prenez contact avec notre agence (CAGNARD Aurélie) pour tout renseignement sur la maison. Maisons de l'Avenir Guipavas est là pour vous accompagner à toutes les étapes de l'achat.
Cette belle maison traditionnelle aux lignes contemporaines offre 183m² habitable . Au rez-de-chaussée, elle dispose d'une belle pièce de vie offrant un maximum de lumière, d'une grande suite parentale avec sa salle d'eau, d'un wc, d'un cellier et d'une buanderie.
A l'étage on retrouve 3 chambres et une salle de bain.
L'orientation de cette maison vous permettra de bénéficier d'un maximum de lumière et de chaleur naturelle pour davantage d'économies et de douceur de vivre.
Aux normes RE2020, peu énergivore, elle vous ravira par son confort de vie
Elle est à vendre pour la… Lire la suite
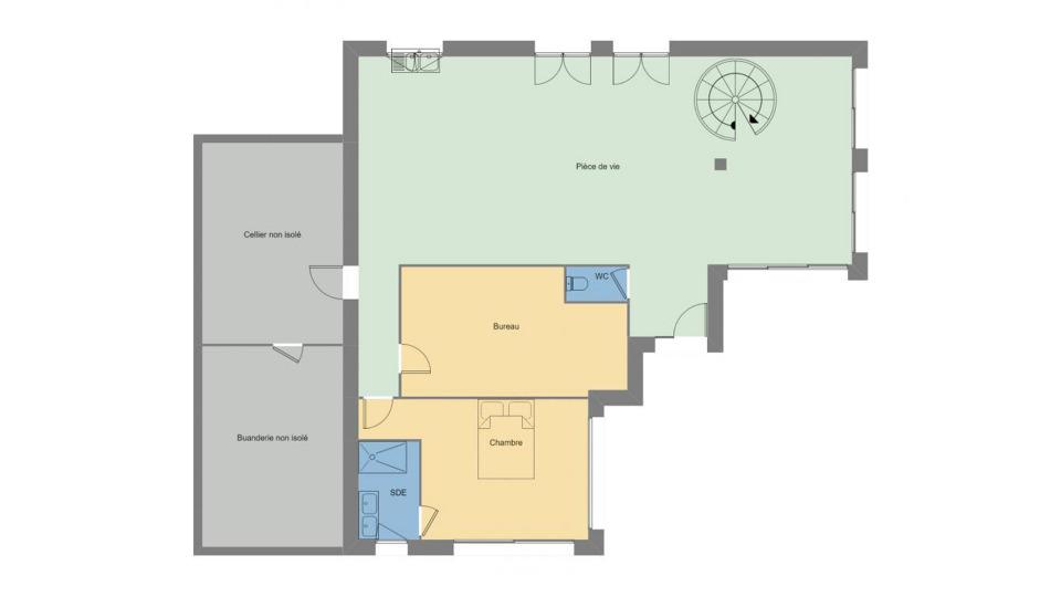
VENTE : maison de 6 pièces (183 m²) à Santec
Cette belle maison traditionnelle aux lignes contemporaines offre 183m² habitable . Au rez-de-chaussée, elle dispose d'une belle pièce de vie offrant un maximum de lumière, d'une grande suite parentale avec sa salle d'eau, d'un wc, d'un cellier et d'une buanderie.
A l'étage on retrouve 3 chambres et une salle de bain.
L'orientation de cette maison vous permettra de bénéficier d'un maximum de lumière et de chaleur naturelle pour davantage d'économies et de douceur de vivre.
Aux normes RE2020, peu énergivore, elle vous ravira par son confort de vie
Elle est à vendre pour la somme de 630 000 €.
Prenez contact avec notre agence (CAGNARD Aurélie) pour tout renseignement sur la maison. Maisons de l'Avenir Guipavas est là pour vous accompagner à toutes les étapes de l'achat.
Maisons de l’Avenir, constructeur de maisons individuelles, propose en collaboration avec ses partenaires fonciers, une sélection de terrains constructibles, selon disponibilité, pour la construction de maisons neuves définies par le constructeur, avec un contrat de construction de maison individuelle, dans le cadre de la loi du 19/12/1990. Prix net, hors frais notariés, d'enregistrement et de publicité foncière
Terrain proposé au prix de : 249 000 €
Maison proposée au prix de : 381 000 €
Etiquette énergie : A. Assurances et garanties du constructeur (RC professionnelle, décennale, dommage ouvrage, Garantie de livraison à prix et délai convenu). https://www.maisonsdelavenir.com/mentions-legales/
Localisation
Une maison 100% personnalisable
-
Garage
-
Agencement
-
Revêtements extérieurs
-
Toiture
-
Ouvertures
Nos garanties constructeur
UNE MAISON 100% PERSONNALISÉE
Définir un style architectural (contemporain, moderne, traditionnel) et un plan adapté à votre mode de vie pour mettre en lumière votre projet de construction, tel est notre quotidien !
SERVICE 3 EN 1
Nos conseillers habitat vous accompagnent tout au long de votre projet : Terrain – Maison - Financement, afin de garantir sa réussite et de satisfaire vos exigences !
DES ANNÉES D'EXPÉRIENCES
Depuis 1962, la marque Maisons de l’Avenir inspire confiance et sérénité, une si longue expérience dans la construction de maisons individuelles, c’est un vrai gage de qualité !









