Prix Maison + Terrain
- À partir de 345 000 €
Référence
- PAB2358068_1
Maison personnalisable
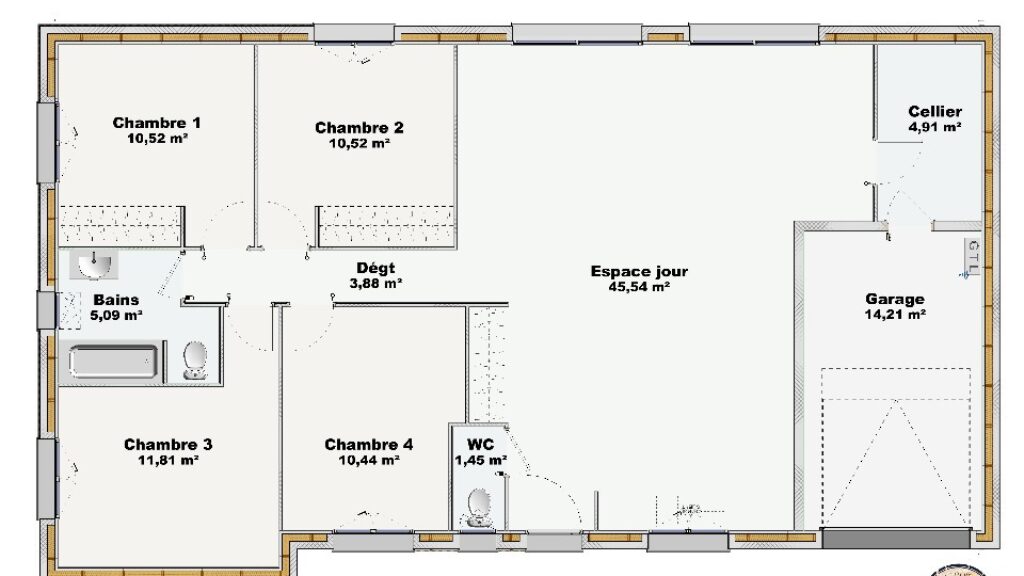
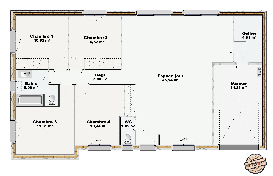
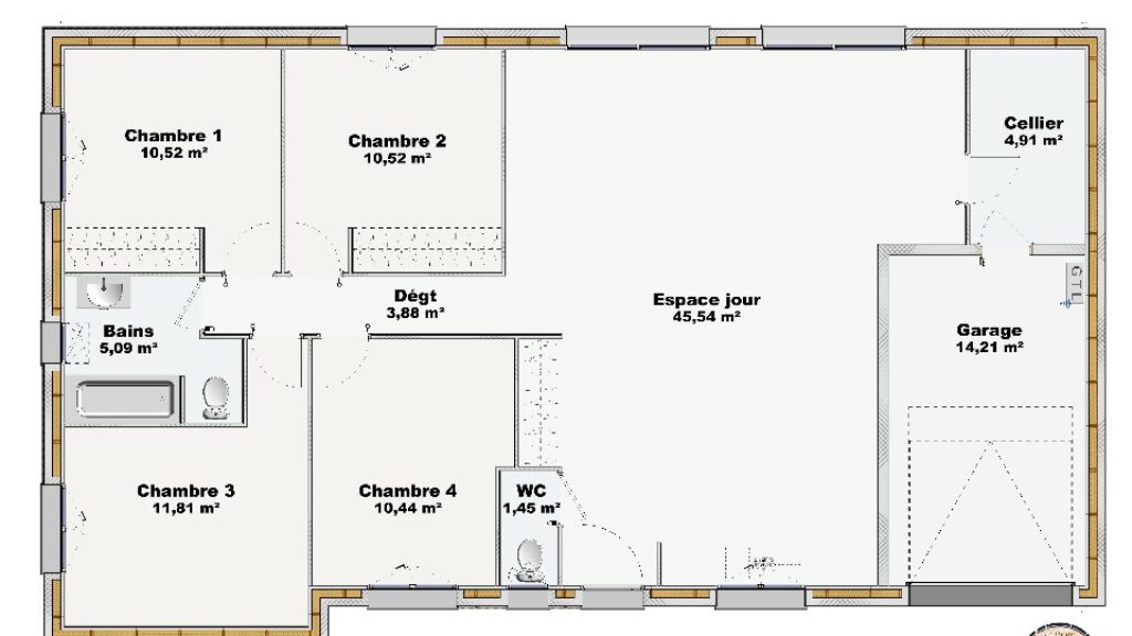
- Chambres : 4
- Nombre de pièces : 5
- Surface maison : 104 m²
- Surface terrain : 483 m²
- Garage/Carport
Performances énergétiques
- Classe énergétique : A
Description
Saint-Julien-de-Concelles : maison de 5 pièces (104 m²) à vendre
EMPLACEMENT PRIVILÉGIÉ - MAISON 5 PIÈCES NEUVE
À vendre : à 42 km de la côte atlantique et à deux pas de Nantes, nous sommes ravis de vous proposer, bénéficiant d'un emplacement d'exception dans Saint-Julien-de-Concelles (44450), cette maison de 5 pièces de 104 m² avec vue sur espace vert.
Cette maison est de plain-pied. Conçue de plain-pied, elle est composée de quatre chambres, d'une cuisine et de deux salles de bains. La maison est neuve.
Le terrain du bien s'étend sur 483 m².
Cette maison est située dans un secteur prisé. On y trouve l'École Maternelle le Lys de la Vallée, l'École Élémentaire Publique le Lys de la Vallée et l'École Primaire Privée Gabriel Deshayes. Niveau transports en commun, on trouve quatre gares à moins de 10 minutes en voiture. Les autoroutes A11 et A811 et les nationales N249 et N844 sont accessibles à moins de 10 km. Il y a un commerce dans les environs.
Elle est proposée à l'achat pour 345 000 €.
Contactez notre agence (Pierre Antoine BURILLE : 02-40-26-28-28) pour obtenir de plus amples renseignements sur la maison, sur les démarches à suivre ou sur les modalités de vente. Concrétisez vos projets immobiliers avec Maisons de l'Avenir Rezé.
EMPLACEMENT PRIVILÉGIÉ - MAISON 5 PIÈCES NEUVE
À vendre : à 42 km de la côte atlantique et à deux pas de Nantes, nous sommes ravis de vous proposer, bénéficiant d'un emplacement d'exception dans Saint-Julien-de-Concelles (44450), cette maison de 5 pièces de 104 m² avec vue sur espace vert.
Cette maison est de plain-pied. Conçue de plain-pied, elle est composée de quatre chambres, d'une cuisine et de deux salles de bains. La maison est neuve.
Le terrain du bien s'étend sur 483 m².
Cette maison est située dans un secteur prisé. On y trouve l'École Maternelle le… Lire la suite
Saint-Julien-de-Concelles : maison de 5 pièces (104 m²) à vendre
EMPLACEMENT PRIVILÉGIÉ - MAISON 5 PIÈCES NEUVE
À vendre : à 42 km de la côte atlantique et à deux pas de Nantes, nous sommes ravis de vous proposer, bénéficiant d'un emplacement d'exception dans Saint-Julien-de-Concelles (44450), cette maison de 5 pièces de 104 m² avec vue sur espace vert.
Cette maison est de plain-pied. Conçue de plain-pied, elle est composée de quatre chambres, d'une cuisine et de deux salles de bains. La maison est neuve.
Le terrain du bien s'étend sur 483 m².
Cette maison est située dans un secteur prisé. On y trouve l'École Maternelle le Lys de la Vallée, l'École Élémentaire Publique le Lys de la Vallée et l'École Primaire Privée Gabriel Deshayes. Niveau transports en commun, on trouve quatre gares à moins de 10 minutes en voiture. Les autoroutes A11 et A811 et les nationales N249 et N844 sont accessibles à moins de 10 km. Il y a un commerce dans les environs.
Elle est proposée à l'achat pour 345 000 €.
Contactez notre agence (Pierre Antoine BURILLE : 02-40-26-28-28) pour obtenir de plus amples renseignements sur la maison, sur les démarches à suivre ou sur les modalités de vente. Concrétisez vos projets immobiliers avec Maisons de l'Avenir Rezé.
Terrain proposé par un partenaire foncier selon disponibilités et autorisation de publicité au prix de 116 000 €. Hors droit d'enregistrement et frais de notaire. Terrain + Maison proposés au prix de 229 000 € (Hors branchements et raccordements, papiers peints, peintures, revêtement de sol dans les chambres. Tarif modifiable sans préavis). Etiquette énergie : A. Différents modèles disponibles pour ce terrain. Assurances et garanties du constructeur (RC professionnelle, décennale, dommage ouvrage, garantie de remboursement de l'acompte, livraison à prix et délai convenu) : https://www.maisonsdelavenir.com/mentions-legales/.
Localisation
Une maison 100% personnalisable
-
Garage
-
Agencement
-
Revêtements extérieurs
-
Toiture
-
Ouvertures
Nos garanties constructeur
UNE MAISON 100% PERSONNALISÉE
Définir un style architectural (contemporain, moderne, traditionnel) et un plan adapté à votre mode de vie pour mettre en lumière votre projet de construction, tel est notre quotidien !
SERVICE 3 EN 1
Nos conseillers habitat vous accompagnent tout au long de votre projet : Terrain – Maison - Financement, afin de garantir sa réussite et de satisfaire vos exigences !
DES ANNÉES D'EXPÉRIENCES
Depuis 1962, la marque Maisons de l’Avenir inspire confiance et sérénité, une si longue expérience dans la construction de maisons individuelles, c’est un vrai gage de qualité !

































