Prix Maison + Terrain
- À partir de 264 900 €
Référence
- LA2328917_2
Maison personnalisable
- Chambres : 4
- Nombre de pièces : 5
- Surface maison : 102 m²
- Surface terrain : 360 m²
- Garage/Carport
Performances énergétiques
- Classe énergétique : A
Description
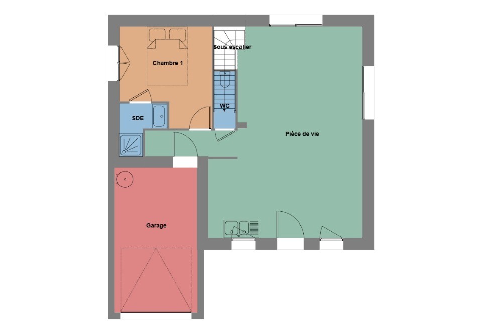
VENTE : maison T5 (102 m²) à Saint-Guinoux
EMPLACEMENT PRIVILÉGIÉ - Cette maison se trouve en second rideau lui donnant une belle exposition sans vis a vis et très au calme a deux pas des commodités du bourg.
MAISON 5 PIÈCES NEUVE
À vendre : localisée à 7 km de la Manche et à deux pas de Saint-Malo, votre agence Maisons de l'Avenir Saint-Carné est heureuse de vous proposer cette maison de 5 pièces de 102 m² bénéficiant d'un emplacement privilégié dans Saint-Guinoux (35430). Son intérieur inclut quatre chambres, une cuisine et deux salles de bains.
Le terrain de cette maison est de 360 m².
Cette maison comporte 2 niveaux. Elle est neuve.
La maison se trouve dans un secteur attractif. Il y a l'École Primaire Publique les Cèdres à moins de 10 minutes à pied. Côté transports, on trouve quatre gares à moins de 10 minutes en voiture. La nationale N176 est accessible à 4 km. Il y a une bibliothèque et une boulangerie à quelques minutes de la maison.
Elle est proposée à l'achat pour 264 900 €.
N'hésitez pas à prendre contact avec Laetitia AMIRI (02-99-83-07-20) pour plus de renseignements sur la maison ou sur les modalités de vente. Concrétisez vos projets immobiliers avec Maisons de l'Avenir Saint-Carné.
EMPLACEMENT PRIVILÉGIÉ - Cette maison se trouve en second rideau lui donnant une belle exposition sans vis a vis et très au calme a deux pas des commodités du bourg.
MAISON 5 PIÈCES NEUVE
À vendre : localisée à 7 km de la Manche et à deux pas de Saint-Malo, votre agence Maisons de l'Avenir Saint-Carné est heureuse de vous proposer cette maison de 5 pièces de 102 m² bénéficiant d'un emplacement privilégié dans Saint-Guinoux (35430). Son intérieur inclut quatre chambres, une cuisine et deux salles de bains.
Le terrain de cette maison est de 360 m².
Cette maison… Lire la suite
VENTE : maison T5 (102 m²) à Saint-Guinoux
EMPLACEMENT PRIVILÉGIÉ - Cette maison se trouve en second rideau lui donnant une belle exposition sans vis a vis et très au calme a deux pas des commodités du bourg.
MAISON 5 PIÈCES NEUVE
À vendre : localisée à 7 km de la Manche et à deux pas de Saint-Malo, votre agence Maisons de l'Avenir Saint-Carné est heureuse de vous proposer cette maison de 5 pièces de 102 m² bénéficiant d'un emplacement privilégié dans Saint-Guinoux (35430). Son intérieur inclut quatre chambres, une cuisine et deux salles de bains.
Le terrain de cette maison est de 360 m².
Cette maison comporte 2 niveaux. Elle est neuve.
La maison se trouve dans un secteur attractif. Il y a l'École Primaire Publique les Cèdres à moins de 10 minutes à pied. Côté transports, on trouve quatre gares à moins de 10 minutes en voiture. La nationale N176 est accessible à 4 km. Il y a une bibliothèque et une boulangerie à quelques minutes de la maison.
Elle est proposée à l'achat pour 264 900 €.
N'hésitez pas à prendre contact avec Laetitia AMIRI (02-99-83-07-20) pour plus de renseignements sur la maison ou sur les modalités de vente. Concrétisez vos projets immobiliers avec Maisons de l'Avenir Saint-Carné.
Maisons de l’Avenir, constructeur de maisons individuelles, propose en collaboration avec ses partenaires fonciers, une sélection de terrains constructibles, selon disponibilité, pour la construction de maisons neuves définies par le constructeur, avec un contrat de construction de maison individuelle, dans le cadre de la loi du 19/12/1990. Prix net, hors frais notariés, d'enregistrement et de publicité foncière
Terrain proposé au prix de : 79 900 €
Maison proposée au prix de : 185 000 €
Etiquette énergie : A. Assurances et garanties du constructeur (RC professionnelle, décennale, dommage ouvrage, Garantie de livraison à prix et délai convenu). https://www.maisonsdelavenir.com/mentions-legales/
Localisation
Une maison 100% personnalisable
-
Garage
-
Agencement
-
Revêtements extérieurs
-
Toiture
-
Ouvertures
Nos garanties constructeur
UNE MAISON 100% PERSONNALISÉE
Définir un style architectural (contemporain, moderne, traditionnel) et un plan adapté à votre mode de vie pour mettre en lumière votre projet de construction, tel est notre quotidien !
SERVICE 3 EN 1
Nos conseillers habitat vous accompagnent tout au long de votre projet : Terrain – Maison - Financement, afin de garantir sa réussite et de satisfaire vos exigences !
DES ANNÉES D'EXPÉRIENCES
Depuis 1962, la marque Maisons de l’Avenir inspire confiance et sérénité, une si longue expérience dans la construction de maisons individuelles, c’est un vrai gage de qualité !





















