Prix Maison + Terrain
- À partir de 261 000 €
Référence
- CR2386128_1
Maison personnalisable
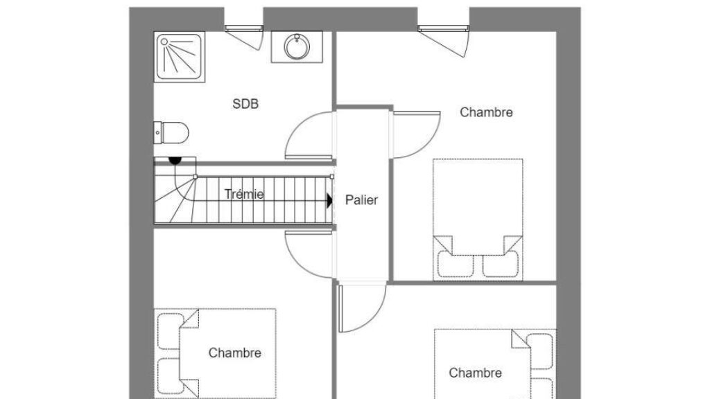
- Chambres : 3
- Nombre de pièces : 4
- Surface maison : 80 m²
- Surface terrain : 308 m²
- Garage/Carport
Performances énergétiques
- Classe énergétique : A
Description
VENTE d'une maison de 4 pièces (80 m²) à Saint-Aubin-d'Aubigné
MAISON 4 PIÈCES NEUVE - PROCHE DE RENNES
En vente : localisée à 40 km de la Manche et à 18 km de Rennes, à Saint-Aubin-d'Aubigné (35250), découvrez cette maison de 4 pièces de 80 m².
Cette maison comporte 2 niveaux. Elle dispose de trois chambres, d'une cuisine et d'une salle de bains.
Elle est à vendre pour la somme de 261 000 €.
Prenez contact avec notre agence (Cyril RENVAZE pour plus d'informations sur la maison.
MAISON 4 PIÈCES NEUVE - PROCHE DE RENNES
En vente : localisée à 40 km de la Manche et à 18 km de Rennes, à Saint-Aubin-d'Aubigné (35250), découvrez cette maison de 4 pièces de 80 m².
Cette maison comporte 2 niveaux. Elle dispose de trois chambres, d'une cuisine et d'une salle de bains.
Elle est à vendre pour la somme de 261 000 €.
Prenez contact avec notre agence (Cyril RENVAZE pour plus d'informations sur la maison. Lire la suite
VENTE d'une maison de 4 pièces (80 m²) à Saint-Aubin-d'Aubigné
MAISON 4 PIÈCES NEUVE - PROCHE DE RENNES
En vente : localisée à 40 km de la Manche et à 18 km de Rennes, à Saint-Aubin-d'Aubigné (35250), découvrez cette maison de 4 pièces de 80 m².
Cette maison comporte 2 niveaux. Elle dispose de trois chambres, d'une cuisine et d'une salle de bains.
Elle est à vendre pour la somme de 261 000 €.
Prenez contact avec notre agence (Cyril RENVAZE pour plus d'informations sur la maison.
Terrain proposé par un partenaire foncier selon disponibilités et autorisation de publicité au prix de 78 000 €. Hors droit d'enregistrement et frais de notaire. Terrain + Maison proposés au prix de 183 000 € (Hors branchements et raccordements, papiers peints, peintures, revêtement de sol dans les chambres. Tarif modifiable sans préavis). Etiquette énergie : A. Différents modèles disponibles pour ce terrain. Assurances et garanties du constructeur (RC professionnelle, décennale, dommage ouvrage, garantie de remboursement de l'acompte, livraison à prix et délai convenu) : https://www.maisonsdelavenir.com/mentions-legales/.
Localisation
Une maison 100% personnalisable
-
Garage
-
Agencement
-
Revêtements extérieurs
-
Toiture
-
Ouvertures
Nos garanties constructeur
UNE MAISON 100% PERSONNALISÉE
Définir un style architectural (contemporain, moderne, traditionnel) et un plan adapté à votre mode de vie pour mettre en lumière votre projet de construction, tel est notre quotidien !
SERVICE 3 EN 1
Nos conseillers habitat vous accompagnent tout au long de votre projet : Terrain – Maison - Financement, afin de garantir sa réussite et de satisfaire vos exigences !
DES ANNÉES D'EXPÉRIENCES
Depuis 1962, la marque Maisons de l’Avenir inspire confiance et sérénité, une si longue expérience dans la construction de maisons individuelles, c’est un vrai gage de qualité !

















