Maison à construire de 194m² (3 chambres) sur un terrain de 696m² à Roscoff (29680)

2354701-5377modele820200626b3ZGk.jpeg
Nous contacter
  • Prix Maison + Terrain

    • À partir de 598 000 €
  • Référence

    • AC2354689_3
  • Maison personnalisable

    • Chambres : 3
    • Nombre de pièces : 4
    • Surface maison : 194 m²
    • Surface terrain : 696 m²
    • Garage/Carport
  • Performances énergétiques

    • Classe énergétique : A

Description

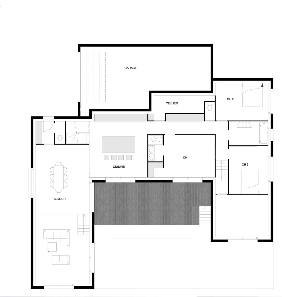
VENTE d'une maison F4 (194 m²) à Roscoff
Cette belle maison traditionnelle aux lignes contemporaines offre 194m² habitable .
Au rez-de-chaussée, elle dispose d'une belle pièce de vie offrant un maximum de lumière, 3 chambres, salle d'eau, d'un wc, d'un très grand cellier et son garage.
A l'étage on trouve une mezzanine.
L'orientation de cette maison vous permettra de bénéficier d'un maximum de lumière et de chaleur naturelle pour davantage d'économies et de douceur de vivre.
Aux normes RE2020, peu énergivore, elle vous ravira par son confort de vie.
Elle est proposée à l'achat pour 598 000 €.
Contactez notre agence (Aurélie CAGNARD) pour obtenir de plus amples informations sur la maison.

Masquer
VENTE d'une maison F4 (194 m²) à Roscoff
Cette belle maison traditionnelle aux lignes contemporaines offre 194m² habitable .
Au rez-de-chaussée, elle dispose d'une belle pièce de vie offrant un maximum de lumière, 3 chambres, salle d'eau, d'un wc, d'un très grand cellier et son garage.
A l'étage on trouve une mezzanine.
L'orientation de cette maison vous permettra de bénéficier d'un maximum de lumière et de chaleur naturelle pour davantage d'économies et de douceur de vivre.
Aux normes RE2020, peu énergivore, elle vous ravira par son confort de vie.
Elle est proposée à l'achat pour 598 000 €.
Contactez notre agence (Aurélie CAGNARD) pour obtenir… Lire la suite

VENTE d'une maison F4 (194 m²) à Roscoff
Cette belle maison traditionnelle aux lignes contemporaines offre 194m² habitable .
Au rez-de-chaussée, elle dispose d'une belle pièce de vie offrant un maximum de lumière, 3 chambres, salle d'eau, d'un wc, d'un très grand cellier et son garage.
A l'étage on trouve une mezzanine.
L'orientation de cette maison vous permettra de bénéficier d'un maximum de lumière et de chaleur naturelle pour davantage d'économies et de douceur de vivre.
Aux normes RE2020, peu énergivore, elle vous ravira par son confort de vie.
Elle est proposée à l'achat pour 598 000 €.
Contactez notre agence (Aurélie CAGNARD) pour obtenir de plus amples informations sur la maison.

Localisation

Une maison 100% personnalisable

  • Garage

  • Agencement

  • Revêtements extérieurs

  • Toiture

  • Ouvertures

Nos garanties constructeur

UNE MAISON 100% PERSONNALISÉE

Définir un style architectural (contemporain, moderne, traditionnel) et un plan adapté à votre mode de vie pour mettre en lumière votre projet de construction, tel est notre quotidien !

SERVICE 3 EN 1

Nos conseillers habitat vous accompagnent tout au long de votre projet : Terrain – Maison - Financement, afin de garantir sa réussite et de satisfaire vos exigences !

DES ANNÉES D'EXPÉRIENCES

Depuis 1962, la marque Maisons de l’Avenir inspire confiance et sérénité, une si longue expérience dans la construction de maisons individuelles, c’est un vrai gage de qualité !