Prix Maison + Terrain
- À partir de 297 000 €
Référence
- TD2385150_2
Maison personnalisable
- Chambres : 3
- Nombre de pièces : 4
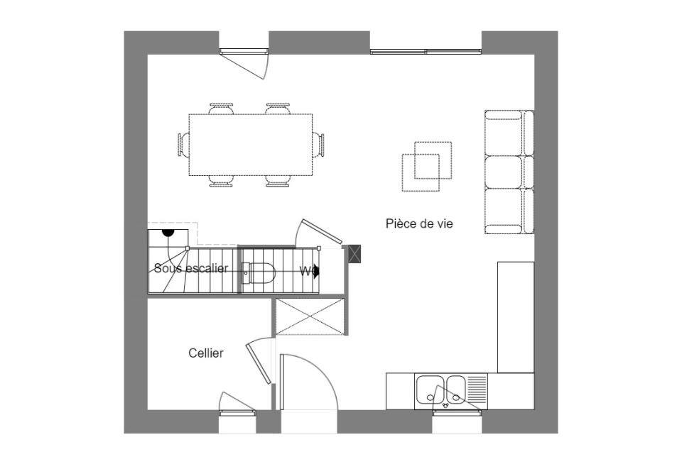
- Surface maison : 70 m²
- Surface terrain : 470 m²
- Garage/Carport
Performances énergétiques
- Classe énergétique : A
Description
VENTE : maison F4 (70 m²) à Rezé
MAISON 4 PIÈCES NEUVE
En vente : à 21 km de la côte atlantique, venez découvrir cette maison de 4 pièces de 70 m² à Rezé (44400).
Cette maison comporte 2 niveaux. Son intérieur dispose de trois chambres, d'une cuisine et d'une salle de bains.
Son prix de vente est de 297 000 €.
N'hésitez pas à prendre contact avec Thibault DUPONT (02-40-26-28-28) pour toute question sur cette maison ou sur les démarches à suivre. Donnez vie à vos projets immobiliers avec Maisons de l'Avenir Rezé.
MAISON 4 PIÈCES NEUVE
En vente : à 21 km de la côte atlantique, venez découvrir cette maison de 4 pièces de 70 m² à Rezé (44400).
Cette maison comporte 2 niveaux. Son intérieur dispose de trois chambres, d'une cuisine et d'une salle de bains.
Son prix de vente est de 297 000 €.
N'hésitez pas à prendre contact avec Thibault DUPONT (02-40-26-28-28) pour toute question sur cette maison ou sur les démarches à suivre. Donnez vie à vos projets immobiliers avec Maisons de l'Avenir Rezé. Lire la suite
VENTE : maison F4 (70 m²) à Rezé
MAISON 4 PIÈCES NEUVE
En vente : à 21 km de la côte atlantique, venez découvrir cette maison de 4 pièces de 70 m² à Rezé (44400).
Cette maison comporte 2 niveaux. Son intérieur dispose de trois chambres, d'une cuisine et d'une salle de bains.
Son prix de vente est de 297 000 €.
N'hésitez pas à prendre contact avec Thibault DUPONT (02-40-26-28-28) pour toute question sur cette maison ou sur les démarches à suivre. Donnez vie à vos projets immobiliers avec Maisons de l'Avenir Rezé.
Terrain proposé par un partenaire foncier selon disponibilités et autorisation de publicité au prix de 140 000 €. Hors droit d'enregistrement et frais de notaire. Terrain + Maison proposés au prix de 157 000 € (Hors branchements et raccordements, papiers peints, peintures, revêtement de sol dans les chambres. Tarif modifiable sans préavis). Etiquette énergie : A. Différents modèles disponibles pour ce terrain. Assurances et garanties du constructeur (RC professionnelle, décennale, dommage ouvrage, garantie de remboursement de l'acompte, livraison à prix et délai convenu) : https://www.maisonsdelavenir.com/mentions-legales/.
Localisation
Une maison 100% personnalisable
-
Garage
-
Agencement
-
Revêtements extérieurs
-
Toiture
-
Ouvertures
Nos garanties constructeur
UNE MAISON 100% PERSONNALISÉE
Définir un style architectural (contemporain, moderne, traditionnel) et un plan adapté à votre mode de vie pour mettre en lumière votre projet de construction, tel est notre quotidien !
SERVICE 3 EN 1
Nos conseillers habitat vous accompagnent tout au long de votre projet : Terrain – Maison - Financement, afin de garantir sa réussite et de satisfaire vos exigences !
DES ANNÉES D'EXPÉRIENCES
Depuis 1962, la marque Maisons de l’Avenir inspire confiance et sérénité, une si longue expérience dans la construction de maisons individuelles, c’est un vrai gage de qualité !

















