Prix Maison + Terrain
- À partir de 273 525 €
Référence
- AC2338078_1
Maison personnalisable
- Chambres : 4
- Nombre de pièces : 5
- Surface maison : 87 m²
- Surface terrain : 590 m²
- Garage/Carport
Performances énergétiques
- Classe énergétique : A
Description
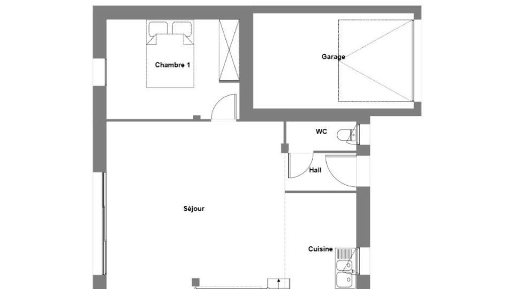
Plougoulm : maison de 5 pièces (87 m²) à vendre
Cette belle maison traditionnelle aux lignes contemporaines offre 87m² habitable .
Au rez-de-chaussée, elle dispose d'une belle pièce de vie de 34m² offrant un maximum de lumière, d'une chambre en rez de chaussé, d'un wc et d'un garage.
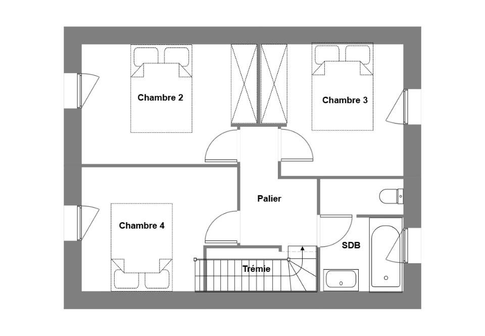
A l'étage on retrouve 3 chambres, une salle de bains, et un WC. L'orientation de cette maison vous permettra de bénéficier d'un maximum de lumière et de chaleur naturelle pour davantage d'économies et de douceur de vivre.
Son prix de vente est de 273 525 €.
Prenez contact avec Aurélie CAGNARD pour tout renseignement sur ce bien, sur les modalités de vente ou sur les démarches à suivre. Maisons de l'Avenir Guipavas est là pour vous accompagner dans tous vos projets immobiliers.
Cette belle maison traditionnelle aux lignes contemporaines offre 87m² habitable .
Au rez-de-chaussée, elle dispose d'une belle pièce de vie de 34m² offrant un maximum de lumière, d'une chambre en rez de chaussé, d'un wc et d'un garage.
A l'étage on retrouve 3 chambres, une salle de bains, et un WC. L'orientation de cette maison vous permettra de bénéficier d'un maximum de lumière et de chaleur naturelle pour davantage d'économies et de douceur de vivre.
Son prix de vente est de 273 525 €.
Prenez contact avec Aurélie CAGNARD pour tout renseignement sur ce… Lire la suite
Plougoulm : maison de 5 pièces (87 m²) à vendre
Cette belle maison traditionnelle aux lignes contemporaines offre 87m² habitable .
Au rez-de-chaussée, elle dispose d'une belle pièce de vie de 34m² offrant un maximum de lumière, d'une chambre en rez de chaussé, d'un wc et d'un garage.
A l'étage on retrouve 3 chambres, une salle de bains, et un WC. L'orientation de cette maison vous permettra de bénéficier d'un maximum de lumière et de chaleur naturelle pour davantage d'économies et de douceur de vivre.
Son prix de vente est de 273 525 €.
Prenez contact avec Aurélie CAGNARD pour tout renseignement sur ce bien, sur les modalités de vente ou sur les démarches à suivre. Maisons de l'Avenir Guipavas est là pour vous accompagner dans tous vos projets immobiliers.
Maisons de l’Avenir, constructeur de maisons individuelles, propose en collaboration avec ses partenaires fonciers, une sélection de terrains constructibles, selon disponibilité, pour la construction de maisons neuves définies par le constructeur, avec un contrat de construction de maison individuelle, dans le cadre de la loi du 19/12/1990. Prix net, hors frais notariés, d'enregistrement et de publicité foncière
Terrain proposé au prix de : 67 125 €
Maison proposée au prix de : 206 400 €
Etiquette énergie : A. Assurances et garanties du constructeur (RC professionnelle, décennale, dommage ouvrage, Garantie de livraison à prix et délai convenu). https://www.maisonsdelavenir.com/mentions-legales/
Localisation
Une maison 100% personnalisable
-
Garage
-
Agencement
-
Revêtements extérieurs
-
Toiture
-
Ouvertures
Nos garanties constructeur
UNE MAISON 100% PERSONNALISÉE
Définir un style architectural (contemporain, moderne, traditionnel) et un plan adapté à votre mode de vie pour mettre en lumière votre projet de construction, tel est notre quotidien !
SERVICE 3 EN 1
Nos conseillers habitat vous accompagnent tout au long de votre projet : Terrain – Maison - Financement, afin de garantir sa réussite et de satisfaire vos exigences !
DES ANNÉES D'EXPÉRIENCES
Depuis 1962, la marque Maisons de l’Avenir inspire confiance et sérénité, une si longue expérience dans la construction de maisons individuelles, c’est un vrai gage de qualité !























