Prix Maison + Terrain
- À partir de 295 000 €
Référence
- ET2292604_2
Maison personnalisable
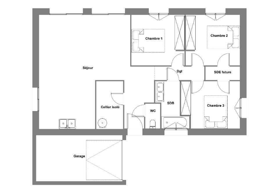
- Chambres : 3
- Nombre de pièces : 4
- Surface maison : 80 m²
- Surface terrain : 336 m²
- Garage/Carport
Performances énergétiques
- Classe énergétique : A
Description
🏡 Terrain à vendre - Plougastel-Daoulas - 336 m²
📍 À deux pas du bourg et des transports en commun, ce terrain de 336 m², issu d'une division de parcelle, est une opportunité rare sur un secteur très recherché.
Situé dans un environnement calme et agréable, il est idéal pour construire votre petit nid dans un cadre de vie privilégié, au coeur de la commune.
✅ Emplacement de qualité
✅ Proximité immédiate des commerces, écoles et services
✅ Environnement résidentiel
✅ Terrain plat, borné, hors lotissement
🏠 Projet de construction proposé avec Maisons de l'Avenir :
Nous vous proposons les plans d'une maison de plain-pied au style traditionnel, pensée pour allier confort et performance énergétique.
✅ Surface habitable : 80 m² (entièrement adaptable selon vos besoins)
✅ 3 chambres, dont une suite parentale avec salle d'eau et dressing
✅ 2 salles d'eau
✅ Espace de vie lumineux d'environ 35 m²
✅ Cuisine ouverte avec cellier attenant
✅ Garage pour véhicule et espace de stockage
TERRAIN + MAISON = 295000€
🌿 Cette maison s'inscrit dans notre concept Bâti Activ, des maisons passives et intelligentes conçues pour :
Maximiser l'ensoleillement naturel ☀️
Réduire les consommations d'énergie
Offrir un confort thermique été comme hiver
🔨 Ce bien est proposé à la vente par Maisons de l'Avenir, constructeur reconnu pour ses projets sur mesure.
Vous avez un projet de construction ? Nous vous accompagnons de A à Z !
📩 Ce terrain vous intéresse ? Contactez vite :
📞 Erwan TILLY - Maisons de l'Avenir
➡️ Visite possible sur rendez-vous - Une occasion à ne pas manquer !
📍 À deux pas du bourg et des transports en commun, ce terrain de 336 m², issu d'une division de parcelle, est une opportunité rare sur un secteur très recherché.
Situé dans un environnement calme et agréable, il est idéal pour construire votre petit nid dans un cadre de vie privilégié, au coeur de la commune.
✅ Emplacement de qualité
✅ Proximité immédiate des commerces, écoles et services
✅ Environnement résidentiel
✅ Terrain plat, borné, hors lotissement
🏠 Projet de construction proposé avec Maisons de l'Avenir :
Nous vous proposons les plans d'une maison de plain-pied au style traditionnel,… Lire la suite
🏡 Terrain à vendre - Plougastel-Daoulas - 336 m²
📍 À deux pas du bourg et des transports en commun, ce terrain de 336 m², issu d'une division de parcelle, est une opportunité rare sur un secteur très recherché.
Situé dans un environnement calme et agréable, il est idéal pour construire votre petit nid dans un cadre de vie privilégié, au coeur de la commune.
✅ Emplacement de qualité
✅ Proximité immédiate des commerces, écoles et services
✅ Environnement résidentiel
✅ Terrain plat, borné, hors lotissement
🏠 Projet de construction proposé avec Maisons de l'Avenir :
Nous vous proposons les plans d'une maison de plain-pied au style traditionnel, pensée pour allier confort et performance énergétique.
✅ Surface habitable : 80 m² (entièrement adaptable selon vos besoins)
✅ 3 chambres, dont une suite parentale avec salle d'eau et dressing
✅ 2 salles d'eau
✅ Espace de vie lumineux d'environ 35 m²
✅ Cuisine ouverte avec cellier attenant
✅ Garage pour véhicule et espace de stockage
TERRAIN + MAISON = 295000€
🌿 Cette maison s'inscrit dans notre concept Bâti Activ, des maisons passives et intelligentes conçues pour :
Maximiser l'ensoleillement naturel ☀️
Réduire les consommations d'énergie
Offrir un confort thermique été comme hiver
🔨 Ce bien est proposé à la vente par Maisons de l'Avenir, constructeur reconnu pour ses projets sur mesure.
Vous avez un projet de construction ? Nous vous accompagnons de A à Z !
📩 Ce terrain vous intéresse ? Contactez vite :
📞 Erwan TILLY - Maisons de l'Avenir
➡️ Visite possible sur rendez-vous - Une occasion à ne pas manquer !
Maisons de l’Avenir, constructeur de maisons individuelles, propose en collaboration avec ses partenaires fonciers, une sélection de terrains constructibles, selon disponibilité, pour la construction de maisons neuves définies par le constructeur, avec un contrat de construction de maison individuelle, dans le cadre de la loi du 19/12/1990. Prix net, hors frais notariés, d'enregistrement et de publicité foncière
Terrain proposé au prix de : 94 000 €
Maison proposée au prix de : 201 000 €
Etiquette énergie : A. Assurances et garanties du constructeur (RC professionnelle, décennale, dommage ouvrage, Garantie de livraison à prix et délai convenu). https://www.maisonsdelavenir.com/mentions-legales/
Localisation
Une maison 100% personnalisable
-
Garage
-
Agencement
-
Revêtements extérieurs
-
Toiture
-
Ouvertures
Nos garanties constructeur
UNE MAISON 100% PERSONNALISÉE
Définir un style architectural (contemporain, moderne, traditionnel) et un plan adapté à votre mode de vie pour mettre en lumière votre projet de construction, tel est notre quotidien !
SERVICE 3 EN 1
Nos conseillers habitat vous accompagnent tout au long de votre projet : Terrain – Maison - Financement, afin de garantir sa réussite et de satisfaire vos exigences !
DES ANNÉES D'EXPÉRIENCES
Depuis 1962, la marque Maisons de l’Avenir inspire confiance et sérénité, une si longue expérience dans la construction de maisons individuelles, c’est un vrai gage de qualité !

















