Prix Maison + Terrain
- À partir de 373 400 €
Référence
- ML2361618_1
Maison personnalisable
- Chambres : 4
- Nombre de pièces : 5
- Surface maison : 140 m²
- Surface terrain : 615 m²
- Garage/Carport
Performances énergétiques
- Classe énergétique : A
Description
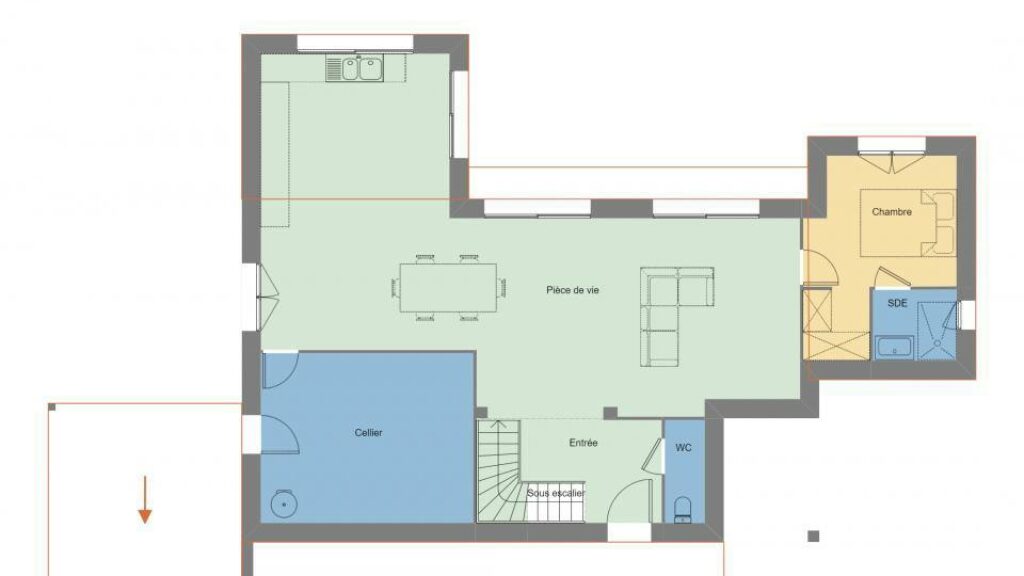
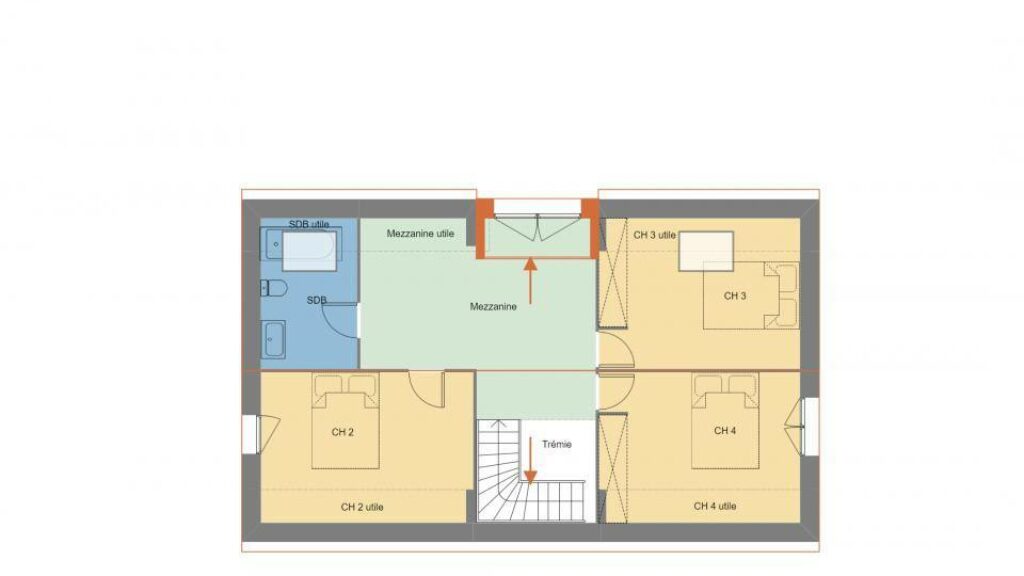
VENTE d'une maison de 5 pièces (140 m²) à Penmarch
MAISON 5 PIÈCES NEUVE - PROCHE DE QUIMPER
À 4 km de la côte atlantique et à 27 km de Quimper, notre agence Maisons de l'Avenir Quimper est heureuse de vous proposer cette maison de 5 pièces de 140 m² en vente à Penmarch (29760). Son intérieur se divise en quatre chambres, une cuisine et deux salles de bains.
Le terrain de la maison est de 615 m².
Cette maison comporte 2 niveaux. Elle est neuve.
L'École Primaire Publique Auguste Dupouy et l'École Primaire Privée Saint Joseph sont implantées à proximité. On trouve deux boulangeries, un supermarché, un commerce, un bureau de poste et une épicerie à quelques minutes de la maison.
Elle est proposée à l'achat pour 373 400 €.
Contactez notre agence (LAURENT Marie : 02-98-54-75-20) pour toute question sur cette propriété. Maisons de l'Avenir Quimper est là pour vous accompagner dans toutes vos démarches.
MAISON 5 PIÈCES NEUVE - PROCHE DE QUIMPER
À 4 km de la côte atlantique et à 27 km de Quimper, notre agence Maisons de l'Avenir Quimper est heureuse de vous proposer cette maison de 5 pièces de 140 m² en vente à Penmarch (29760). Son intérieur se divise en quatre chambres, une cuisine et deux salles de bains.
Le terrain de la maison est de 615 m².
Cette maison comporte 2 niveaux. Elle est neuve.
L'École Primaire Publique Auguste Dupouy et l'École Primaire Privée Saint Joseph sont implantées à proximité. On trouve deux boulangeries, un supermarché,… Lire la suite
VENTE d'une maison de 5 pièces (140 m²) à Penmarch
MAISON 5 PIÈCES NEUVE - PROCHE DE QUIMPER
À 4 km de la côte atlantique et à 27 km de Quimper, notre agence Maisons de l'Avenir Quimper est heureuse de vous proposer cette maison de 5 pièces de 140 m² en vente à Penmarch (29760). Son intérieur se divise en quatre chambres, une cuisine et deux salles de bains.
Le terrain de la maison est de 615 m².
Cette maison comporte 2 niveaux. Elle est neuve.
L'École Primaire Publique Auguste Dupouy et l'École Primaire Privée Saint Joseph sont implantées à proximité. On trouve deux boulangeries, un supermarché, un commerce, un bureau de poste et une épicerie à quelques minutes de la maison.
Elle est proposée à l'achat pour 373 400 €.
Contactez notre agence (LAURENT Marie : 02-98-54-75-20) pour toute question sur cette propriété. Maisons de l'Avenir Quimper est là pour vous accompagner dans toutes vos démarches.
Maisons de l’Avenir, constructeur de maisons individuelles, propose en collaboration avec ses partenaires fonciers, une sélection de terrains constructibles, selon disponibilité, pour la construction de maisons neuves définies par le constructeur, avec un contrat de construction de maison individuelle, dans le cadre de la loi du 19/12/1990. Prix net, hors frais notariés, d'enregistrement et de publicité foncière
Terrain proposé au prix de : 64 000 €
Maison proposée au prix de : 309 400 €
Etiquette énergie : A. Assurances et garanties du constructeur (RC professionnelle, décennale, dommage ouvrage, Garantie de livraison à prix et délai convenu). https://www.maisonsdelavenir.com/mentions-legales/
Localisation
Une maison 100% personnalisable
-
Garage
-
Agencement
-
Revêtements extérieurs
-
Toiture
-
Ouvertures
Nos garanties constructeur
UNE MAISON 100% PERSONNALISÉE
Définir un style architectural (contemporain, moderne, traditionnel) et un plan adapté à votre mode de vie pour mettre en lumière votre projet de construction, tel est notre quotidien !
SERVICE 3 EN 1
Nos conseillers habitat vous accompagnent tout au long de votre projet : Terrain – Maison - Financement, afin de garantir sa réussite et de satisfaire vos exigences !
DES ANNÉES D'EXPÉRIENCES
Depuis 1962, la marque Maisons de l’Avenir inspire confiance et sérénité, une si longue expérience dans la construction de maisons individuelles, c’est un vrai gage de qualité !















