Prix Maison + Terrain
- À partir de 440 000 €
Référence
- CC2349760_1
Maison personnalisable
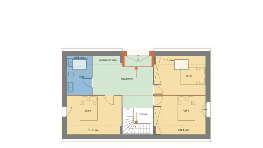
- Chambres : 4
- Nombre de pièces : 5
- Surface maison : 140 m²
- Surface terrain : 440 m²
- Garage/Carport
Performances énergétiques
- Classe énergétique : A
Description
VENTE d'une maison de 5 pièces (140 m²) à Moëlan-sur-Mer
EMPLACEMENT PRIVILÉGIÉ - MAISON 5 PIÈCES NEUVE
En vente : localisée sur la côte atlantique et à 21 km de Lorient, nous vous proposons cette maison de 5 pièces de 140 m² bénéficiant d'un emplacement privilégié dans Moëlan-sur-Mer (29350). Son intérieur offre quatre chambres, une cuisine et deux salles de bains.
Le terrain de cette maison est de 440 m².
Il s'agit d'une maison de 2 niveaux. Elle est neuve.
La propriété se trouve dans un quartier recherché. Il y a l'École Primaire Privée Immaculée-Conception, l'École Élémentaire Publique de Moëlan-Sur-Sur et le Collège Parc-Ar-Ar-Ar Cotty à moins de 10 minutes à pied et deux crèches. Niveau transports en commun, on trouve la gare Quimperlé à moins de 10 minutes en voiture. La nationale N165 est accessible à 7 km. Il y a un tennis, des commerces, trois boulangeries, un supermarché et un bureau de poste à proximité. Enfin, le marché Place de l'Eglise a lieu chaque mardi matin.
Son prix de vente est de 440 000 €.
Contactez Christophe COLLOCH (02-97-21-63-96) pour toute information sur la maison, sur les démarches à suivre ou sur les modalités de vente.
EMPLACEMENT PRIVILÉGIÉ - MAISON 5 PIÈCES NEUVE
En vente : localisée sur la côte atlantique et à 21 km de Lorient, nous vous proposons cette maison de 5 pièces de 140 m² bénéficiant d'un emplacement privilégié dans Moëlan-sur-Mer (29350). Son intérieur offre quatre chambres, une cuisine et deux salles de bains.
Le terrain de cette maison est de 440 m².
Il s'agit d'une maison de 2 niveaux. Elle est neuve.
La propriété se trouve dans un quartier recherché. Il y a l'École Primaire Privée Immaculée-Conception, l'École Élémentaire Publique de Moëlan-Sur-Sur et le Collège Parc-Ar-Ar-Ar Cotty à moins… Lire la suite
VENTE d'une maison de 5 pièces (140 m²) à Moëlan-sur-Mer
EMPLACEMENT PRIVILÉGIÉ - MAISON 5 PIÈCES NEUVE
En vente : localisée sur la côte atlantique et à 21 km de Lorient, nous vous proposons cette maison de 5 pièces de 140 m² bénéficiant d'un emplacement privilégié dans Moëlan-sur-Mer (29350). Son intérieur offre quatre chambres, une cuisine et deux salles de bains.
Le terrain de cette maison est de 440 m².
Il s'agit d'une maison de 2 niveaux. Elle est neuve.
La propriété se trouve dans un quartier recherché. Il y a l'École Primaire Privée Immaculée-Conception, l'École Élémentaire Publique de Moëlan-Sur-Sur et le Collège Parc-Ar-Ar-Ar Cotty à moins de 10 minutes à pied et deux crèches. Niveau transports en commun, on trouve la gare Quimperlé à moins de 10 minutes en voiture. La nationale N165 est accessible à 7 km. Il y a un tennis, des commerces, trois boulangeries, un supermarché et un bureau de poste à proximité. Enfin, le marché Place de l'Eglise a lieu chaque mardi matin.
Son prix de vente est de 440 000 €.
Contactez Christophe COLLOCH (02-97-21-63-96) pour toute information sur la maison, sur les démarches à suivre ou sur les modalités de vente.
Maisons de l’Avenir, constructeur de maisons individuelles, propose en collaboration avec ses partenaires fonciers, une sélection de terrains constructibles, selon disponibilité, pour la construction de maisons neuves définies par le constructeur, avec un contrat de construction de maison individuelle, dans le cadre de la loi du 19/12/1990. Prix net, hors frais notariés, d'enregistrement et de publicité foncière
Terrain proposé au prix de : 81 000 €
Maison proposée au prix de : 359 000 €
Etiquette énergie : A. Assurances et garanties du constructeur (RC professionnelle, décennale, dommage ouvrage, Garantie de livraison à prix et délai convenu). https://www.maisonsdelavenir.com/mentions-legales/
Localisation
Une maison 100% personnalisable
-
Garage
-
Agencement
-
Revêtements extérieurs
-
Toiture
-
Ouvertures
Nos garanties constructeur
UNE MAISON 100% PERSONNALISÉE
Définir un style architectural (contemporain, moderne, traditionnel) et un plan adapté à votre mode de vie pour mettre en lumière votre projet de construction, tel est notre quotidien !
SERVICE 3 EN 1
Nos conseillers habitat vous accompagnent tout au long de votre projet : Terrain – Maison - Financement, afin de garantir sa réussite et de satisfaire vos exigences !
DES ANNÉES D'EXPÉRIENCES
Depuis 1962, la marque Maisons de l’Avenir inspire confiance et sérénité, une si longue expérience dans la construction de maisons individuelles, c’est un vrai gage de qualité !















