Prix Maison + Terrain
- À partir de 385 500 €
Référence
- ML2334151_2
Maison personnalisable
- Chambres : 3
- Nombre de pièces : 4
- Surface maison : 135 m²
- Surface terrain : 657 m²
- Garage/Carport
Performances énergétiques
- Classe énergétique : A
Description
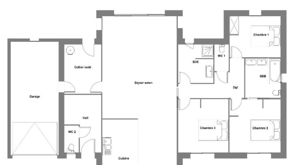
VENTE : maison F4 (135 m²) à Moëlan-sur-Mer
PROCHE DE LORIENT - MAISON 4 PIÈCES NEUVE
En vente sur le littoral atlantique et à 21 km de Lorient, Maisons de l'Avenir Quimper vous propose à Moëlan-sur-Mer (29350), cette maison de 4 pièces de plain-pied de 135 m² et de 657 m² de terrain.
Elle est composée de trois chambres, d'une cuisine et de deux salles de bains. Cette maison est neuve.
Côté transports en commun, il y a la gare Quimperlé à moins de 10 minutes en voiture. La nationale N165 est accessible à 7 km. On trouve un tennis, des commerces, trois boulangeries, un supermarché et un bureau de poste à quelques minutes à peine. Le marché Place de l'Eglise a lieu tous les mardis matin.
Elle est proposée à l'achat pour 385 500 €.
Contactez notre agence (LAURENT Marie : 02-98-54-75-20) pour plus de renseignements sur la maison, sur les modalités de vente ou sur les démarches à suivre.
PROCHE DE LORIENT - MAISON 4 PIÈCES NEUVE
En vente sur le littoral atlantique et à 21 km de Lorient, Maisons de l'Avenir Quimper vous propose à Moëlan-sur-Mer (29350), cette maison de 4 pièces de plain-pied de 135 m² et de 657 m² de terrain.
Elle est composée de trois chambres, d'une cuisine et de deux salles de bains. Cette maison est neuve.
Côté transports en commun, il y a la gare Quimperlé à moins de 10 minutes en voiture. La nationale N165 est accessible à 7 km. On trouve un tennis, des commerces, trois boulangeries, un supermarché… Lire la suite
VENTE : maison F4 (135 m²) à Moëlan-sur-Mer
PROCHE DE LORIENT - MAISON 4 PIÈCES NEUVE
En vente sur le littoral atlantique et à 21 km de Lorient, Maisons de l'Avenir Quimper vous propose à Moëlan-sur-Mer (29350), cette maison de 4 pièces de plain-pied de 135 m² et de 657 m² de terrain.
Elle est composée de trois chambres, d'une cuisine et de deux salles de bains. Cette maison est neuve.
Côté transports en commun, il y a la gare Quimperlé à moins de 10 minutes en voiture. La nationale N165 est accessible à 7 km. On trouve un tennis, des commerces, trois boulangeries, un supermarché et un bureau de poste à quelques minutes à peine. Le marché Place de l'Eglise a lieu tous les mardis matin.
Elle est proposée à l'achat pour 385 500 €.
Contactez notre agence (LAURENT Marie : 02-98-54-75-20) pour plus de renseignements sur la maison, sur les modalités de vente ou sur les démarches à suivre.
Maisons de l’Avenir, constructeur de maisons individuelles, propose en collaboration avec ses partenaires fonciers, une sélection de terrains constructibles, selon disponibilité, pour la construction de maisons neuves définies par le constructeur, avec un contrat de construction de maison individuelle, dans le cadre de la loi du 19/12/1990. Prix net, hors frais notariés, d'enregistrement et de publicité foncière
Terrain proposé au prix de : 87 000 €
Maison proposée au prix de : 298 500 €
Etiquette énergie : A. Assurances et garanties du constructeur (RC professionnelle, décennale, dommage ouvrage, Garantie de livraison à prix et délai convenu). https://www.maisonsdelavenir.com/mentions-legales/
Localisation
Une maison 100% personnalisable
-
Garage
-
Agencement
-
Revêtements extérieurs
-
Toiture
-
Ouvertures
Nos garanties constructeur
UNE MAISON 100% PERSONNALISÉE
Définir un style architectural (contemporain, moderne, traditionnel) et un plan adapté à votre mode de vie pour mettre en lumière votre projet de construction, tel est notre quotidien !
SERVICE 3 EN 1
Nos conseillers habitat vous accompagnent tout au long de votre projet : Terrain – Maison - Financement, afin de garantir sa réussite et de satisfaire vos exigences !
DES ANNÉES D'EXPÉRIENCES
Depuis 1962, la marque Maisons de l’Avenir inspire confiance et sérénité, une si longue expérience dans la construction de maisons individuelles, c’est un vrai gage de qualité !















