Prix Maison + Terrain
- À partir de 267 900 €
Référence
- PAB2386424_4
Maison personnalisable
- Chambres : 4
- Nombre de pièces : 5
- Surface maison : 87 m²
- Surface terrain : 664 m²
- Garage/Carport
Performances énergétiques
- Classe énergétique : A
Description
VENTE : maison de 5 pièces (87 m²) à Machecoul
IDÉALEMENT SITUÉE - MAISON 5 PIÈCES NEUVE
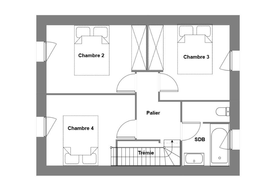
En vente à 19 km de l'océan Atlantique et à deux pas de Saint-Herblain, Maisons de l'Avenir Rezé vous propose cette maison de 5 pièces de 87 m² idéalement située dans Machecoul (44270). Elle se divise en quatre chambres, une cuisine et une salle de bains.
Le terrain de la propriété s'étend sur 664 m².
C'est une maison de 2 niveaux. Elle est neuve.
La maison est située dans un quartier convoité. Il y a tous les types d'écoles (maternelle, élémentaire et secondaire) à moins de 10 minutes à pied. Niveau transports, on trouve la gare Machecoul dans un rayon de 1 km. Il y a un bassin de natation, une bibliothèque, un tennis, des commerces, quatre boulangeries, deux supermarchés, deux boucheries-charcuteries et deux épiceries à quelques minutes à peine. Ne manquez pas le marché Place du marché chaque mercredi matin.
Elle est proposée à l'achat pour 267 900 €.
Contactez notre agence (BURILLE Pierre Antoine : 02-40-26-28-28) pour tout renseignement sur la maison, sur les démarches à suivre ou sur les modalités de vente.
IDÉALEMENT SITUÉE - MAISON 5 PIÈCES NEUVE
En vente à 19 km de l'océan Atlantique et à deux pas de Saint-Herblain, Maisons de l'Avenir Rezé vous propose cette maison de 5 pièces de 87 m² idéalement située dans Machecoul (44270). Elle se divise en quatre chambres, une cuisine et une salle de bains.
Le terrain de la propriété s'étend sur 664 m².
C'est une maison de 2 niveaux. Elle est neuve.
La maison est située dans un quartier convoité. Il y a tous les types d'écoles (maternelle, élémentaire et secondaire) à moins de 10 minutes à pied.… Lire la suite
VENTE : maison de 5 pièces (87 m²) à Machecoul
IDÉALEMENT SITUÉE - MAISON 5 PIÈCES NEUVE
En vente à 19 km de l'océan Atlantique et à deux pas de Saint-Herblain, Maisons de l'Avenir Rezé vous propose cette maison de 5 pièces de 87 m² idéalement située dans Machecoul (44270). Elle se divise en quatre chambres, une cuisine et une salle de bains.
Le terrain de la propriété s'étend sur 664 m².
C'est une maison de 2 niveaux. Elle est neuve.
La maison est située dans un quartier convoité. Il y a tous les types d'écoles (maternelle, élémentaire et secondaire) à moins de 10 minutes à pied. Niveau transports, on trouve la gare Machecoul dans un rayon de 1 km. Il y a un bassin de natation, une bibliothèque, un tennis, des commerces, quatre boulangeries, deux supermarchés, deux boucheries-charcuteries et deux épiceries à quelques minutes à peine. Ne manquez pas le marché Place du marché chaque mercredi matin.
Elle est proposée à l'achat pour 267 900 €.
Contactez notre agence (BURILLE Pierre Antoine : 02-40-26-28-28) pour tout renseignement sur la maison, sur les démarches à suivre ou sur les modalités de vente.
Terrain proposé par un partenaire foncier selon disponibilités et autorisation de publicité au prix de 69 500 €. Hors droit d'enregistrement et frais de notaire. Terrain + Maison proposés au prix de 198 400 € (Hors branchements et raccordements, papiers peints, peintures, revêtement de sol dans les chambres. Tarif modifiable sans préavis). Etiquette énergie : A. Différents modèles disponibles pour ce terrain. Assurances et garanties du constructeur (RC professionnelle, décennale, dommage ouvrage, garantie de remboursement de l'acompte, livraison à prix et délai convenu) : https://www.maisonsdelavenir.com/mentions-legales/.
Localisation
Une maison 100% personnalisable
-
Garage
-
Agencement
-
Revêtements extérieurs
-
Toiture
-
Ouvertures
Nos garanties constructeur
UNE MAISON 100% PERSONNALISÉE
Définir un style architectural (contemporain, moderne, traditionnel) et un plan adapté à votre mode de vie pour mettre en lumière votre projet de construction, tel est notre quotidien !
SERVICE 3 EN 1
Nos conseillers habitat vous accompagnent tout au long de votre projet : Terrain – Maison - Financement, afin de garantir sa réussite et de satisfaire vos exigences !
DES ANNÉES D'EXPÉRIENCES
Depuis 1962, la marque Maisons de l’Avenir inspire confiance et sérénité, une si longue expérience dans la construction de maisons individuelles, c’est un vrai gage de qualité !























