Prix Maison + Terrain
- À partir de 508 000 €
Référence
- ET2337556_2
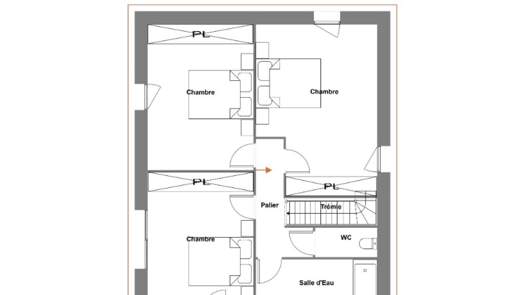
Maison personnalisable
- Chambres : 4
- Nombre de pièces : 5
- Surface maison : 143 m²
- Surface terrain : 771 m²
- Garage/Carport
Performances énergétiques
- Classe énergétique : A
Description
📢 À vendre : Terrain exceptionnel à Locmaria-Plouzané ! 🌟
Sur la commune prisée de Locmaria-Plouzané, découvrez ce magnifique terrain de 771 m², idéalement situé à deux pas du bourg et issu d'une récente division parcellaire.
💰 Prix attractif : 130 000 €
Ce terrain, rare sur le marché, est une opportunité unique pour construire la maison de vos rêves dans un environnement recherché, alliant tranquillité et proximité des commodités.
🏠 Votre projet clé en main :
Nous proposons les plans d'une maison au style moderne, de 143 m², comprenant :
✔️ 4 chambres, dont une suite parentale
✔️ 2 salles d'eau
✔️ Un vaste espace de vie ouvert de plus de 60 m²
✔️ Un garage pour protéger votre voiture ou offrir un espace de stockage
Cette maison est conçue dans le cadre de nos maisons passives Bati Activ, favorisant les gains énergétiques et l'ensoleillement pour un confort optimal. Les plans sont entièrement modifiables selon vos goûts et envies, tant sur l'esthétique que sur l'architecture.
💡 Prix de l'opération terrain + maison : 508 000 €
Ne laissez pas passer cette opportunité unique ! Contactez dès maintenant Erwan Tilly de Maisons de l'Avenir, pour visiter ce terrain et concrétiser votre projet sur mesure.
📞 Contact : Erwan Tilly
Maisons de l'Avenir
Un bien d'une telle qualité ne restera pas disponible longtemps. Faites vite ! 🏡
Sur la commune prisée de Locmaria-Plouzané, découvrez ce magnifique terrain de 771 m², idéalement situé à deux pas du bourg et issu d'une récente division parcellaire.
💰 Prix attractif : 130 000 €
Ce terrain, rare sur le marché, est une opportunité unique pour construire la maison de vos rêves dans un environnement recherché, alliant tranquillité et proximité des commodités.
🏠 Votre projet clé en main :
Nous proposons les plans d'une maison au style moderne, de 143 m², comprenant :
✔️ 4 chambres, dont une suite parentale
✔️ 2 salles d'eau
✔️ Un vaste espace de vie… Lire la suite
📢 À vendre : Terrain exceptionnel à Locmaria-Plouzané ! 🌟
Sur la commune prisée de Locmaria-Plouzané, découvrez ce magnifique terrain de 771 m², idéalement situé à deux pas du bourg et issu d'une récente division parcellaire.
💰 Prix attractif : 130 000 €
Ce terrain, rare sur le marché, est une opportunité unique pour construire la maison de vos rêves dans un environnement recherché, alliant tranquillité et proximité des commodités.
🏠 Votre projet clé en main :
Nous proposons les plans d'une maison au style moderne, de 143 m², comprenant :
✔️ 4 chambres, dont une suite parentale
✔️ 2 salles d'eau
✔️ Un vaste espace de vie ouvert de plus de 60 m²
✔️ Un garage pour protéger votre voiture ou offrir un espace de stockage
Cette maison est conçue dans le cadre de nos maisons passives Bati Activ, favorisant les gains énergétiques et l'ensoleillement pour un confort optimal. Les plans sont entièrement modifiables selon vos goûts et envies, tant sur l'esthétique que sur l'architecture.
💡 Prix de l'opération terrain + maison : 508 000 €
Ne laissez pas passer cette opportunité unique ! Contactez dès maintenant Erwan Tilly de Maisons de l'Avenir, pour visiter ce terrain et concrétiser votre projet sur mesure.
📞 Contact : Erwan Tilly
Maisons de l'Avenir
Un bien d'une telle qualité ne restera pas disponible longtemps. Faites vite ! 🏡
Maisons de l’Avenir, constructeur de maisons individuelles, propose en collaboration avec ses partenaires fonciers, une sélection de terrains constructibles, selon disponibilité, pour la construction de maisons neuves définies par le constructeur, avec un contrat de construction de maison individuelle, dans le cadre de la loi du 19/12/1990. Prix net, hors frais notariés, d'enregistrement et de publicité foncière
Terrain proposé au prix de : 130 000 €
Maison proposée au prix de : 378 000 €
Etiquette énergie : A. Assurances et garanties du constructeur (RC professionnelle, décennale, dommage ouvrage, Garantie de livraison à prix et délai convenu). https://www.maisonsdelavenir.com/mentions-legales/
Localisation
Une maison 100% personnalisable
-
Garage
-
Agencement
-
Revêtements extérieurs
-
Toiture
-
Ouvertures
Nos garanties constructeur
UNE MAISON 100% PERSONNALISÉE
Définir un style architectural (contemporain, moderne, traditionnel) et un plan adapté à votre mode de vie pour mettre en lumière votre projet de construction, tel est notre quotidien !
SERVICE 3 EN 1
Nos conseillers habitat vous accompagnent tout au long de votre projet : Terrain – Maison - Financement, afin de garantir sa réussite et de satisfaire vos exigences !
DES ANNÉES D'EXPÉRIENCES
Depuis 1962, la marque Maisons de l’Avenir inspire confiance et sérénité, une si longue expérience dans la construction de maisons individuelles, c’est un vrai gage de qualité !



















