Prix Maison + Terrain
- À partir de 297 500 €
Référence
- LA2300524_3
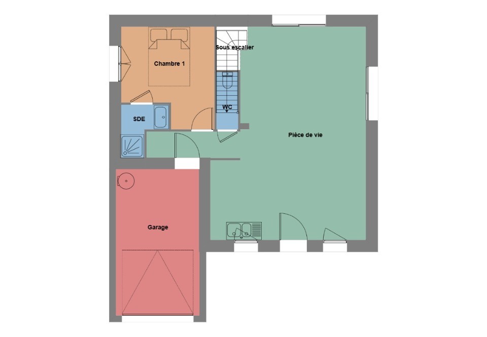
Maison personnalisable
- Chambres : 4
- Nombre de pièces : 5
- Surface maison : 102 m²
- Surface terrain : 589 m²
- Garage/Carport
Performances énergétiques
- Classe énergétique : A
Description
Léhon : maison de 5 pièces (102 m²) à vendre
EMPLACEMENT PRIVILÉGIÉ - PROCHE DE DINAN
MAISON 5 PIÈCES NEUVE
En vente : à 11 km de la Manche et à quelques kilomètres de Saint-Malo, nous sommes heureux de vous présenter cette maison de 5 pièces de 102 m² bénéficiant d'un emplacement privilégié dans Léhon (22100). Son intérieur dispose de quatre chambres, d'une cuisine et de deux salles de bains.
Le terrain de la propriété est de 589 m².
Il s'agit d'une maison de 2 niveaux. Elle est neuve.
La maison est située dans un secteur attractif. Le Collège Privé Notre-Dame de la Victoire se trouve à moins de 10 minutes à pied. Côté transports, il y a quatre gares à moins de 10 minutes en voiture. La nationale N176 est accessible à 4 km. On trouve un tennis, une boulangerie, deux commerces et une boucherie-charcuterie dans les environs.
Son prix de vente est de 297 500 €.
N'hésitez pas à prendre contact avec Laetitia AMIRI (tél : 02-99-83-07-20) pour obtenir de plus amples informations sur la maison ou sur les démarches à suivre. Donnez vie à vos projets immobiliers avec Maisons de l'Avenir Saint-Carné.
EMPLACEMENT PRIVILÉGIÉ - PROCHE DE DINAN
MAISON 5 PIÈCES NEUVE
En vente : à 11 km de la Manche et à quelques kilomètres de Saint-Malo, nous sommes heureux de vous présenter cette maison de 5 pièces de 102 m² bénéficiant d'un emplacement privilégié dans Léhon (22100). Son intérieur dispose de quatre chambres, d'une cuisine et de deux salles de bains.
Le terrain de la propriété est de 589 m².
Il s'agit d'une maison de 2 niveaux. Elle est neuve.
La maison est située dans un secteur attractif. Le Collège Privé Notre-Dame de la Victoire se trouve à moins… Lire la suite
Léhon : maison de 5 pièces (102 m²) à vendre
EMPLACEMENT PRIVILÉGIÉ - PROCHE DE DINAN
MAISON 5 PIÈCES NEUVE
En vente : à 11 km de la Manche et à quelques kilomètres de Saint-Malo, nous sommes heureux de vous présenter cette maison de 5 pièces de 102 m² bénéficiant d'un emplacement privilégié dans Léhon (22100). Son intérieur dispose de quatre chambres, d'une cuisine et de deux salles de bains.
Le terrain de la propriété est de 589 m².
Il s'agit d'une maison de 2 niveaux. Elle est neuve.
La maison est située dans un secteur attractif. Le Collège Privé Notre-Dame de la Victoire se trouve à moins de 10 minutes à pied. Côté transports, il y a quatre gares à moins de 10 minutes en voiture. La nationale N176 est accessible à 4 km. On trouve un tennis, une boulangerie, deux commerces et une boucherie-charcuterie dans les environs.
Son prix de vente est de 297 500 €.
N'hésitez pas à prendre contact avec Laetitia AMIRI (tél : 02-99-83-07-20) pour obtenir de plus amples informations sur la maison ou sur les démarches à suivre. Donnez vie à vos projets immobiliers avec Maisons de l'Avenir Saint-Carné.
Maisons de l’Avenir, constructeur de maisons individuelles, propose en collaboration avec ses partenaires fonciers, une sélection de terrains constructibles, selon disponibilité, pour la construction de maisons neuves définies par le constructeur, avec un contrat de construction de maison individuelle, dans le cadre de la loi du 19/12/1990. Prix net, hors frais notariés, d'enregistrement et de publicité foncière
Terrain proposé au prix de : 115 990 €
Maison proposée au prix de : 181 510 €
Etiquette énergie : A. Assurances et garanties du constructeur (RC professionnelle, décennale, dommage ouvrage, Garantie de livraison à prix et délai convenu). https://www.maisonsdelavenir.com/mentions-legales/
Localisation
Une maison 100% personnalisable
-
Garage
-
Agencement
-
Revêtements extérieurs
-
Toiture
-
Ouvertures
Nos garanties constructeur
UNE MAISON 100% PERSONNALISÉE
Définir un style architectural (contemporain, moderne, traditionnel) et un plan adapté à votre mode de vie pour mettre en lumière votre projet de construction, tel est notre quotidien !
SERVICE 3 EN 1
Nos conseillers habitat vous accompagnent tout au long de votre projet : Terrain – Maison - Financement, afin de garantir sa réussite et de satisfaire vos exigences !
DES ANNÉES D'EXPÉRIENCES
Depuis 1962, la marque Maisons de l’Avenir inspire confiance et sérénité, une si longue expérience dans la construction de maisons individuelles, c’est un vrai gage de qualité !





















