Prix Maison + Terrain
- À partir de 265 000 €
Référence
- ET2323605_3
Maison personnalisable
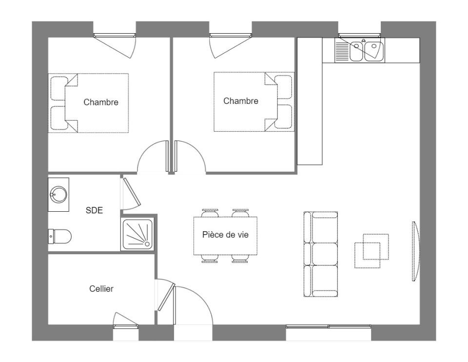
- Chambres : 3
- Nombre de pièces : 4
- Surface maison : 70 m²
- Surface terrain : 446 m²
- Garage/Carport
Performances énergétiques
- Classe énergétique : A
Description
🏡 À Vendre : Terrain de 446m² a Lannilis - 72 000€ 🌊
Découvrez ce terrain rare de 446m², idéalement situé dans un lotissement prisé de Lannilis, à proximité de la mer. 🌅
Nous vous proposons également les plans d'une maison de 70m², comprenant 3 chambres dont une suite parentale, ainsi que deux salles de bains. Profitez d'un vaste espace de vie de plus de 30m², pensé avec un maximum d'ouvertures pour favoriser la luminosité et les gains énergétiques, selon notre label Bâti Activ Maisons Passives. 🌞🏡
Les plans sont entièrement modifiables pour répondre à tous vos besoins et envies. Le projet global terrain + maison est proposé à 265 000€. ✨
Ce terrain bénéficie d'un emplacement privilégié, avec peu de vis à vis 🛤️, tout en restant proche de Brest.
Lannilis est une commune dynamique et recherchée, ce qui fait de ce bien une opportunité à ne pas manquer !
Si ce terrain vous intéresse, ne tardez pas, contactez Erwan TILLY des Maisons de l'Avenir pour plus d'informations et organiser une visite. 📞
Faites vite, une telle opportunité partira rapidement ! 🚀
Découvrez ce terrain rare de 446m², idéalement situé dans un lotissement prisé de Lannilis, à proximité de la mer. 🌅
Nous vous proposons également les plans d'une maison de 70m², comprenant 3 chambres dont une suite parentale, ainsi que deux salles de bains. Profitez d'un vaste espace de vie de plus de 30m², pensé avec un maximum d'ouvertures pour favoriser la luminosité et les gains énergétiques, selon notre label Bâti Activ Maisons Passives. 🌞🏡
Les plans sont entièrement modifiables pour répondre à tous vos besoins et envies. Le projet global… Lire la suite
🏡 À Vendre : Terrain de 446m² a Lannilis - 72 000€ 🌊
Découvrez ce terrain rare de 446m², idéalement situé dans un lotissement prisé de Lannilis, à proximité de la mer. 🌅
Nous vous proposons également les plans d'une maison de 70m², comprenant 3 chambres dont une suite parentale, ainsi que deux salles de bains. Profitez d'un vaste espace de vie de plus de 30m², pensé avec un maximum d'ouvertures pour favoriser la luminosité et les gains énergétiques, selon notre label Bâti Activ Maisons Passives. 🌞🏡
Les plans sont entièrement modifiables pour répondre à tous vos besoins et envies. Le projet global terrain + maison est proposé à 265 000€. ✨
Ce terrain bénéficie d'un emplacement privilégié, avec peu de vis à vis 🛤️, tout en restant proche de Brest.
Lannilis est une commune dynamique et recherchée, ce qui fait de ce bien une opportunité à ne pas manquer !
Si ce terrain vous intéresse, ne tardez pas, contactez Erwan TILLY des Maisons de l'Avenir pour plus d'informations et organiser une visite. 📞
Faites vite, une telle opportunité partira rapidement ! 🚀
Maisons de l’Avenir, constructeur de maisons individuelles, propose en collaboration avec ses partenaires fonciers, une sélection de terrains constructibles, selon disponibilité, pour la construction de maisons neuves définies par le constructeur, avec un contrat de construction de maison individuelle, dans le cadre de la loi du 19/12/1990. Prix net, hors frais notariés, d'enregistrement et de publicité foncière
Terrain proposé au prix de : 72 000 €
Maison proposée au prix de : 193 000 €
Etiquette énergie : A. Assurances et garanties du constructeur (RC professionnelle, décennale, dommage ouvrage, Garantie de livraison à prix et délai convenu). https://www.maisonsdelavenir.com/mentions-legales/
Localisation
Une maison 100% personnalisable
-
Garage
-
Agencement
-
Revêtements extérieurs
-
Toiture
-
Ouvertures
Nos garanties constructeur
UNE MAISON 100% PERSONNALISÉE
Définir un style architectural (contemporain, moderne, traditionnel) et un plan adapté à votre mode de vie pour mettre en lumière votre projet de construction, tel est notre quotidien !
SERVICE 3 EN 1
Nos conseillers habitat vous accompagnent tout au long de votre projet : Terrain – Maison - Financement, afin de garantir sa réussite et de satisfaire vos exigences !
DES ANNÉES D'EXPÉRIENCES
Depuis 1962, la marque Maisons de l’Avenir inspire confiance et sérénité, une si longue expérience dans la construction de maisons individuelles, c’est un vrai gage de qualité !

















