Prix Maison + Terrain
- À partir de 274 933 €
Référence
- SA2300626_2
Maison personnalisable
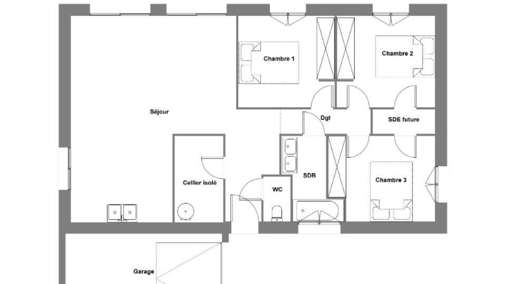
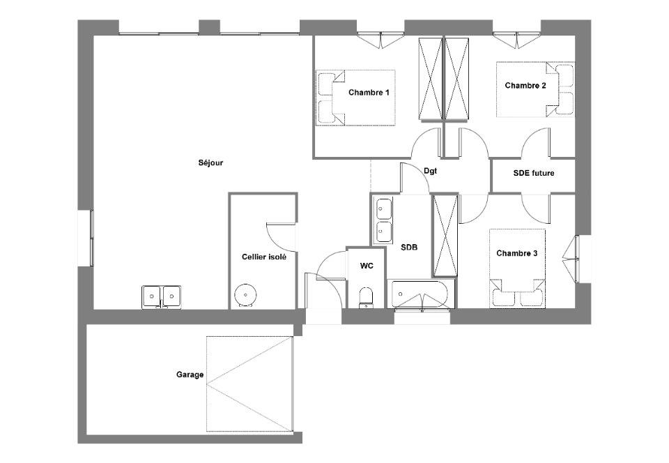
- Chambres : 3
- Nombre de pièces : 4
- Surface maison : 80 m²
- Surface terrain : 536 m²
- Garage/Carport
Performances énergétiques
- Classe énergétique : A
Description
VENTE d'une maison de 4 pièces (80 m²) à Landéda
PROCHE CENTRE-VILLE - MAISON 4 PIÈCES NEUVE
À quelques kilomètres de la mer et à quelques kilomètres de Brest, Maisons de l'Avenir Guipavas vous propose cette maison de 4 pièces de plain-pied de 80 m² et de 536 m² de terrain proche du centre-ville de Landéda (29870).
Elle est composée de trois chambres, d'une cuisine et d'une salle de bains. La maison est neuve.
Il y a l'École Primaire Publique Joseph Signor et l'École Primaire Privée Notre-Dame des Anges à moins de 10 minutes à pied et une structure d'accueil pour les enfants en bas âge. La nationale N12 est accessible à 20 km. On trouve une bibliothèque, deux boulangeries, un commerce, une boucherie-charcuterie et une épicerie dans les environs.
Elle est proposée à l'achat pour 274 933 €.
Prenez contact avec Sami ALKIS pour plus de renseignements sur la maison ou sur les modalités de vente.
PROCHE CENTRE-VILLE - MAISON 4 PIÈCES NEUVE
À quelques kilomètres de la mer et à quelques kilomètres de Brest, Maisons de l'Avenir Guipavas vous propose cette maison de 4 pièces de plain-pied de 80 m² et de 536 m² de terrain proche du centre-ville de Landéda (29870).
Elle est composée de trois chambres, d'une cuisine et d'une salle de bains. La maison est neuve.
Il y a l'École Primaire Publique Joseph Signor et l'École Primaire Privée Notre-Dame des Anges à moins de 10 minutes à pied et une structure d'accueil pour les enfants en bas âge.… Lire la suite
VENTE d'une maison de 4 pièces (80 m²) à Landéda
PROCHE CENTRE-VILLE - MAISON 4 PIÈCES NEUVE
À quelques kilomètres de la mer et à quelques kilomètres de Brest, Maisons de l'Avenir Guipavas vous propose cette maison de 4 pièces de plain-pied de 80 m² et de 536 m² de terrain proche du centre-ville de Landéda (29870).
Elle est composée de trois chambres, d'une cuisine et d'une salle de bains. La maison est neuve.
Il y a l'École Primaire Publique Joseph Signor et l'École Primaire Privée Notre-Dame des Anges à moins de 10 minutes à pied et une structure d'accueil pour les enfants en bas âge. La nationale N12 est accessible à 20 km. On trouve une bibliothèque, deux boulangeries, un commerce, une boucherie-charcuterie et une épicerie dans les environs.
Elle est proposée à l'achat pour 274 933 €.
Prenez contact avec Sami ALKIS pour plus de renseignements sur la maison ou sur les modalités de vente.
Maisons de l’Avenir, constructeur de maisons individuelles, propose en collaboration avec ses partenaires fonciers, une sélection de terrains constructibles, selon disponibilité, pour la construction de maisons neuves définies par le constructeur, avec un contrat de construction de maison individuelle, dans le cadre de la loi du 19/12/1990. Prix net, hors frais notariés, d'enregistrement et de publicité foncière
Terrain proposé au prix de : 67 000 €
Maison proposée au prix de : 207 933 €
Etiquette énergie : A. Assurances et garanties du constructeur (RC professionnelle, décennale, dommage ouvrage, Garantie de livraison à prix et délai convenu). https://www.maisonsdelavenir.com/mentions-legales/
Localisation
Une maison 100% personnalisable
-
Garage
-
Agencement
-
Revêtements extérieurs
-
Toiture
-
Ouvertures
Nos garanties constructeur
UNE MAISON 100% PERSONNALISÉE
Définir un style architectural (contemporain, moderne, traditionnel) et un plan adapté à votre mode de vie pour mettre en lumière votre projet de construction, tel est notre quotidien !
SERVICE 3 EN 1
Nos conseillers habitat vous accompagnent tout au long de votre projet : Terrain – Maison - Financement, afin de garantir sa réussite et de satisfaire vos exigences !
DES ANNÉES D'EXPÉRIENCES
Depuis 1962, la marque Maisons de l’Avenir inspire confiance et sérénité, une si longue expérience dans la construction de maisons individuelles, c’est un vrai gage de qualité !

















