Prix Maison + Terrain
- À partir de 461 428 €
Référence
- SA2372756_4
Maison personnalisable
- Chambres : 3
- Nombre de pièces : 3
- Surface maison : 117 m²
- Surface terrain : 1412 m²
- Garage/Carport
Performances énergétiques
- Classe énergétique : A
Description
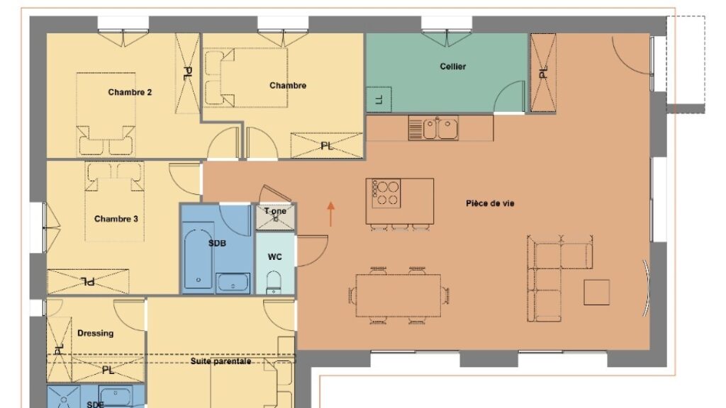
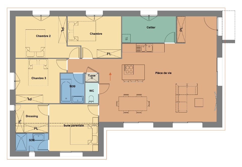
VENTE d'une maison F3 (117 m²) à Crozon
PROCHE CENTRE-VILLE - MAISON 3 PIÈCES NEUVE
À quelques kilomètres de la mer et à deux pas de Brest, votre agence Maisons de l'Avenir Guipavas est heureuse de vous présenter à vendre, proche du centre-ville de Crozon (29160), cette maison de 3 pièces de plain-pied de 117 m². Conçue de plain-pied, elle comporte trois chambres, une cuisine et une salle de bains.
Le terrain de la propriété s'étend sur 1 412 m².
Cette maison est neuve.
Cinq établissements scolaires se trouvent à moins de 10 minutes à pied. Les nationales N165 et N265 sont accessibles à moins de 20 km. Il y a une bibliothèque, trois supermarchés, des commerces, quatre boulangeries, un bureau de poste et deux poissonneries dans les environs.
Elle est à vendre pour la somme de 461 428 €.
Contactez Sami ALKIS pour obtenir de plus amples renseignements sur la propriété, sur les modalités de vente et sur les démarches à suivre.
PROCHE CENTRE-VILLE - MAISON 3 PIÈCES NEUVE
À quelques kilomètres de la mer et à deux pas de Brest, votre agence Maisons de l'Avenir Guipavas est heureuse de vous présenter à vendre, proche du centre-ville de Crozon (29160), cette maison de 3 pièces de plain-pied de 117 m². Conçue de plain-pied, elle comporte trois chambres, une cuisine et une salle de bains.
Le terrain de la propriété s'étend sur 1 412 m².
Cette maison est neuve.
Cinq établissements scolaires se trouvent à moins de 10 minutes à pied. Les nationales N165 et N265 sont accessibles à moins de 20… Lire la suite
VENTE d'une maison F3 (117 m²) à Crozon
PROCHE CENTRE-VILLE - MAISON 3 PIÈCES NEUVE
À quelques kilomètres de la mer et à deux pas de Brest, votre agence Maisons de l'Avenir Guipavas est heureuse de vous présenter à vendre, proche du centre-ville de Crozon (29160), cette maison de 3 pièces de plain-pied de 117 m². Conçue de plain-pied, elle comporte trois chambres, une cuisine et une salle de bains.
Le terrain de la propriété s'étend sur 1 412 m².
Cette maison est neuve.
Cinq établissements scolaires se trouvent à moins de 10 minutes à pied. Les nationales N165 et N265 sont accessibles à moins de 20 km. Il y a une bibliothèque, trois supermarchés, des commerces, quatre boulangeries, un bureau de poste et deux poissonneries dans les environs.
Elle est à vendre pour la somme de 461 428 €.
Contactez Sami ALKIS pour obtenir de plus amples renseignements sur la propriété, sur les modalités de vente et sur les démarches à suivre.
Terrain proposé par un partenaire foncier selon disponibilités et autorisation de publicité au prix de 190 400 €. Hors droit d'enregistrement et frais de notaire. Terrain + Maison proposés au prix de 271 028 € (Hors branchements et raccordements, papiers peints, peintures, revêtement de sol dans les chambres. Tarif modifiable sans préavis). Etiquette énergie : A. Différents modèles disponibles pour ce terrain. Assurances et garanties du constructeur (RC professionnelle, décennale, dommage ouvrage, garantie de remboursement de l'acompte, livraison à prix et délai convenu) : https://www.maisonsdelavenir.com/mentions-legales/.
Localisation
Une maison 100% personnalisable
-
Garage
-
Agencement
-
Revêtements extérieurs
-
Toiture
-
Ouvertures
Nos garanties constructeur
UNE MAISON 100% PERSONNALISÉE
Définir un style architectural (contemporain, moderne, traditionnel) et un plan adapté à votre mode de vie pour mettre en lumière votre projet de construction, tel est notre quotidien !
SERVICE 3 EN 1
Nos conseillers habitat vous accompagnent tout au long de votre projet : Terrain – Maison - Financement, afin de garantir sa réussite et de satisfaire vos exigences !
DES ANNÉES D'EXPÉRIENCES
Depuis 1962, la marque Maisons de l’Avenir inspire confiance et sérénité, une si longue expérience dans la construction de maisons individuelles, c’est un vrai gage de qualité !















