Prix Maison + Terrain
- À partir de 460 000 €
Référence
- ET2292552_3
Maison personnalisable
- Chambres : 4
- Nombre de pièces : 5
- Surface maison : 140 m²
- Surface terrain : 512 m²
- Garage/Carport
Performances énergétiques
- Classe énergétique : A
Description
🏡 Terrain à vendre - Rive Droite (Recouvrance) - 512 m²
📍 Emplacement rare à Brest - Quartier Recouvrance
Découvrez ce terrain hors lotissement de 512 m², issu d'une division de parcelle.
Idéalement situé rive droite, à proximité immédiate des commerces, des écoles et des transports en commun, il offre un cadre de vie pratique et recherché.
🏠 Projet de construction proposé avec Maisons de l'Avenir :
Nous vous proposons les plans d'une maison de style tradi-contemporaine, pensée pour allier confort et performance énergétique.
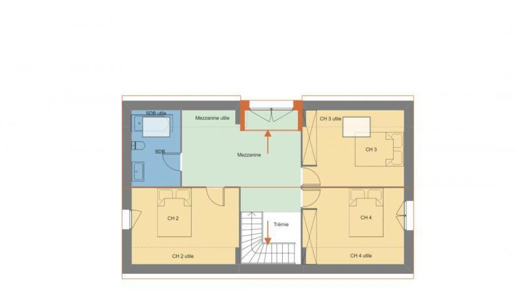
✅ Surface habitable : 140 m² (entièrement adaptable selon vos besoins)
✅ 4 chambres, dont une suite parentale avec salle d'eau et dressing
✅ 2 salles d'eau
✅ Espace de vie lumineux d'environ 55 m²
✅ Cuisine ouverte avec cellier attenant
✅ Garage pour véhicule et espace de stockage
Prix Terrain + Maisons = 460000€
🌿 Cette maison s'inscrit dans notre concept Bâti Activ, des maisons passives et intelligentes conçues pour :
Maximiser l'ensoleillement naturel ☀️
Réduire les consommations d'énergie
Offrir un confort thermique été comme hiver
📩 Si ce bien vous intéresse, faites vite !
📞 Contactez Erwan TILLY - Maisons de l'Avenir
Nous conviendrons ensemble d'une visite du terrain et d'un projet sur mesure, selon vos envies et votre mode de vie.
📍 Emplacement rare à Brest - Quartier Recouvrance
Découvrez ce terrain hors lotissement de 512 m², issu d'une division de parcelle.
Idéalement situé rive droite, à proximité immédiate des commerces, des écoles et des transports en commun, il offre un cadre de vie pratique et recherché.
🏠 Projet de construction proposé avec Maisons de l'Avenir :
Nous vous proposons les plans d'une maison de style tradi-contemporaine, pensée pour allier confort et performance énergétique.
✅ Surface habitable : 140 m² (entièrement adaptable selon vos besoins)
✅ 4 chambres, dont une suite parentale avec salle d'eau et dressing
✅… Lire la suite
🏡 Terrain à vendre - Rive Droite (Recouvrance) - 512 m²
📍 Emplacement rare à Brest - Quartier Recouvrance
Découvrez ce terrain hors lotissement de 512 m², issu d'une division de parcelle.
Idéalement situé rive droite, à proximité immédiate des commerces, des écoles et des transports en commun, il offre un cadre de vie pratique et recherché.
🏠 Projet de construction proposé avec Maisons de l'Avenir :
Nous vous proposons les plans d'une maison de style tradi-contemporaine, pensée pour allier confort et performance énergétique.
✅ Surface habitable : 140 m² (entièrement adaptable selon vos besoins)
✅ 4 chambres, dont une suite parentale avec salle d'eau et dressing
✅ 2 salles d'eau
✅ Espace de vie lumineux d'environ 55 m²
✅ Cuisine ouverte avec cellier attenant
✅ Garage pour véhicule et espace de stockage
Prix Terrain + Maisons = 460000€
🌿 Cette maison s'inscrit dans notre concept Bâti Activ, des maisons passives et intelligentes conçues pour :
Maximiser l'ensoleillement naturel ☀️
Réduire les consommations d'énergie
Offrir un confort thermique été comme hiver
📩 Si ce bien vous intéresse, faites vite !
📞 Contactez Erwan TILLY - Maisons de l'Avenir
Nous conviendrons ensemble d'une visite du terrain et d'un projet sur mesure, selon vos envies et votre mode de vie.
Maisons de l’Avenir, constructeur de maisons individuelles, propose en collaboration avec ses partenaires fonciers, une sélection de terrains constructibles, selon disponibilité, pour la construction de maisons neuves définies par le constructeur, avec un contrat de construction de maison individuelle, dans le cadre de la loi du 19/12/1990. Prix net, hors frais notariés, d'enregistrement et de publicité foncière
Terrain proposé au prix de : 120 000 €
Maison proposée au prix de : 340 000 €
Etiquette énergie : A. Assurances et garanties du constructeur (RC professionnelle, décennale, dommage ouvrage, Garantie de livraison à prix et délai convenu). https://www.maisonsdelavenir.com/mentions-legales/
Localisation
Une maison 100% personnalisable
-
Garage
-
Agencement
-
Revêtements extérieurs
-
Toiture
-
Ouvertures
Nos garanties constructeur
UNE MAISON 100% PERSONNALISÉE
Définir un style architectural (contemporain, moderne, traditionnel) et un plan adapté à votre mode de vie pour mettre en lumière votre projet de construction, tel est notre quotidien !
SERVICE 3 EN 1
Nos conseillers habitat vous accompagnent tout au long de votre projet : Terrain – Maison - Financement, afin de garantir sa réussite et de satisfaire vos exigences !
DES ANNÉES D'EXPÉRIENCES
Depuis 1962, la marque Maisons de l’Avenir inspire confiance et sérénité, une si longue expérience dans la construction de maisons individuelles, c’est un vrai gage de qualité !















