Prix Maison + Terrain
- À partir de 278 000 €
Référence
- ET2292330_2
Maison personnalisable
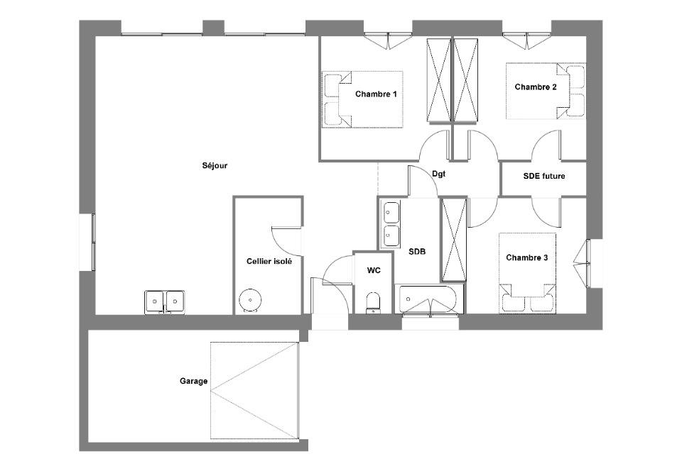
- Chambres : 3
- Nombre de pièces : 4
- Surface maison : 90 m²
- Surface terrain : 451 m²
- Garage/Carport
Performances énergétiques
- Classe énergétique : A
Description
🏡 À Vendre : Terrain de 451m² au coeur de Brest (coté technopôle) - 60 000€ 🌳
Découvrez ce terrain idéalement situé en plein centre de Brest, issu d'un petit lotissement bien situé. Ce terrain de 451m² offre une proximité exceptionnelle avec les commodités et commerces locaux, parfait pour une vie pratique et agréable. 🛒🏫
Nous vous proposons des plans sur mesure pour construire votre futur nid dans cette commune très recherchée. 🏠✨
Nous vous proposons également les plans d'une maison de plain-pied de 90m², comprenant 3 chambres dont une suite parentale, ainsi que deux salles de bains. Profitez d'un vaste espace de vie de plus de 45m², pensé avec un maximum d'ouvertures pour favoriser la luminosité et les gains énergétiques, selon notre label Bâti Activ Maisons Passives. 🌞🏡
Les plans sont entièrement modifiables pour répondre à tous vos besoins et envies. Le projet global terrain + maison est proposé à 278 000€. ✨
Si ce terrain vous intéresse, n'hésitez pas à contacter Erwan TILLY des Maisons de l'Avenir pour plus d'informations et organiser une visite. 📞
Une opportunité rare à saisir ! 🌟
Découvrez ce terrain idéalement situé en plein centre de Brest, issu d'un petit lotissement bien situé. Ce terrain de 451m² offre une proximité exceptionnelle avec les commodités et commerces locaux, parfait pour une vie pratique et agréable. 🛒🏫
Nous vous proposons des plans sur mesure pour construire votre futur nid dans cette commune très recherchée. 🏠✨
Nous vous proposons également les plans d'une maison de plain-pied de 90m², comprenant 3 chambres dont une suite parentale, ainsi que deux salles de bains. Profitez d'un vaste espace de… Lire la suite
🏡 À Vendre : Terrain de 451m² au coeur de Brest (coté technopôle) - 60 000€ 🌳
Découvrez ce terrain idéalement situé en plein centre de Brest, issu d'un petit lotissement bien situé. Ce terrain de 451m² offre une proximité exceptionnelle avec les commodités et commerces locaux, parfait pour une vie pratique et agréable. 🛒🏫
Nous vous proposons des plans sur mesure pour construire votre futur nid dans cette commune très recherchée. 🏠✨
Nous vous proposons également les plans d'une maison de plain-pied de 90m², comprenant 3 chambres dont une suite parentale, ainsi que deux salles de bains. Profitez d'un vaste espace de vie de plus de 45m², pensé avec un maximum d'ouvertures pour favoriser la luminosité et les gains énergétiques, selon notre label Bâti Activ Maisons Passives. 🌞🏡
Les plans sont entièrement modifiables pour répondre à tous vos besoins et envies. Le projet global terrain + maison est proposé à 278 000€. ✨
Si ce terrain vous intéresse, n'hésitez pas à contacter Erwan TILLY des Maisons de l'Avenir pour plus d'informations et organiser une visite. 📞
Une opportunité rare à saisir ! 🌟
Maisons de l’Avenir, constructeur de maisons individuelles, propose en collaboration avec ses partenaires fonciers, une sélection de terrains constructibles, selon disponibilité, pour la construction de maisons neuves définies par le constructeur, avec un contrat de construction de maison individuelle, dans le cadre de la loi du 19/12/1990. Prix net, hors frais notariés, d'enregistrement et de publicité foncière
Terrain proposé au prix de : 60 000 €
Maison proposée au prix de : 218 000 €
Etiquette énergie : A. Assurances et garanties du constructeur (RC professionnelle, décennale, dommage ouvrage, Garantie de livraison à prix et délai convenu). https://www.maisonsdelavenir.com/mentions-legales/
Localisation
Une maison 100% personnalisable
-
Garage
-
Agencement
-
Revêtements extérieurs
-
Toiture
-
Ouvertures
Nos garanties constructeur
UNE MAISON 100% PERSONNALISÉE
Définir un style architectural (contemporain, moderne, traditionnel) et un plan adapté à votre mode de vie pour mettre en lumière votre projet de construction, tel est notre quotidien !
SERVICE 3 EN 1
Nos conseillers habitat vous accompagnent tout au long de votre projet : Terrain – Maison - Financement, afin de garantir sa réussite et de satisfaire vos exigences !
DES ANNÉES D'EXPÉRIENCES
Depuis 1962, la marque Maisons de l’Avenir inspire confiance et sérénité, une si longue expérience dans la construction de maisons individuelles, c’est un vrai gage de qualité !















